Honoraires à la charge de l'acquéreur (Prix hors honoraires : 75000 euros).
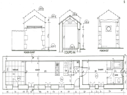
Maison à finir de rénover pour créer un logement cocooning avec extérieur et une place de stationnement de 15 m² . Située au calme dans cette commune recherchée à seulement 7 km des plages de Châtelaillon et 20 min de la Rochelle. La charpente et toiture ont 10ans Le sol total du plancher de la maison a été isolé. L 'aménagement intérieur et la viabilisation sont à effectuer . Le bien est situé en zone UV3 - dans un rayon réglementé par les bâtiments de France Venez vite !! vous laissez séduire par ce bien tout en pierre. Contacter Sandrine Brisset (EI) au 0668787875 Agent commercial inscrit au RSAC de La Rochelle sous le numéro 899 975 106 . (8.40 % honoraires TTC à la charge de l'acquéreur.)