Découvrez cette authentique maison en pierre située au coeur du village Les Petits Robins (rattaché à Livron-sur-Drôme) offrant un potentiel rare et un cachet indéniable.
Une opportunité idéale pour un projet familial, un artisan, un marchand de biens ou pour une division en plusieurs logements.
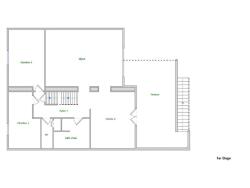
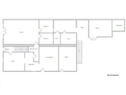
Caractéristiques principales :
. Maison de village en pierre avec plusieurs entrées indépendantes,
. Environ 260 m² au sol sur 3 niveaux,
. 823 m² de terrain (rare sur le secteur),
. Dépendances,
. Environnement calme.
A noter que des travaux à prévoir : cette bâtisse nécessite une rénovation complète pour révéler tout son charme et laisser place à vos projets (habitation principale, plusieurs logements, ateliers, bureaux?).
Les atouts :
. Cachet et authenticité
. Potentiel de division
. Grand terrain au coeur du village
. Multiples possibilités d'aménagement
. Un emplacement agréable recherché dans au Sud de Valence.
Jean-Philippe BUTHIGIEG (EI) Agent Commercial - Numéro RSAC : 432959401 - Aubenas.
Les informations sur les risques auxquels ce bien est exposé sont disponibles sur le site Géorisques : www. georisques. gouv. fr