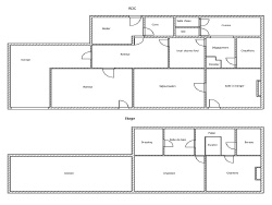
Saint Martin aux Chartrains, entre Deauville et Pont L'Evêque. Maison de 100m2 habitable, annexe mitoyenne aménageable de 100m2 de plancher. Au rez-de-chaussée, un salon-séjour avec cheminée, un salon, une cuisine aménagée, une chaufferie-buanderie, des WC séparés et une salle de douche. À l'étage, deux chambres, un bureau, une salle de bains avec WC et une pièce attenante. Les annexes mitoyennes d'environ 100m2 comprennent deux ateliers, un grenier, un garage, une cave et une pièce avec cuve à fioul. Cette maison à rénover est édifiée sur un terrain de 1300m2. Deux bâtiments extérieurs type abri de jardin. A découvrir au plus vite !
Contactez l'@gence immobilière pour programmer une visite ! Vente, location, achat, gestion. Maisons, appartements, studios, immeubles, investissement locatif, terrains. PLUS DE BIENS SUR NOTRE SITE INTERNET : www.lagence-pontleveque.com
Les informations sur les risques auxquels ce bien est exposé sont disponibles sur le site Géorisques : www.georisques.gouv.fr L'@GENCE IMMOBILIERE.
100 m²
2 650 €
1300 m²
5
3
1
1
2
1948
Sud
1
Consommations énergétiques
Logement économe
420
Logement énergivore (kWhEP/m2/an)
Émissions de gaz à effet de serre
Faible émission de GES
88
Forte émission de GES(kgeqCO2/m2/an)
Contact L'@GENCE IMMOBILIÉRE
Contacter gratuitement à l'aide du formulaire ci-dessous.