Maison 113m² habitable dans le quartier du VERT GALANT
Tremblay-en-France 93290
0
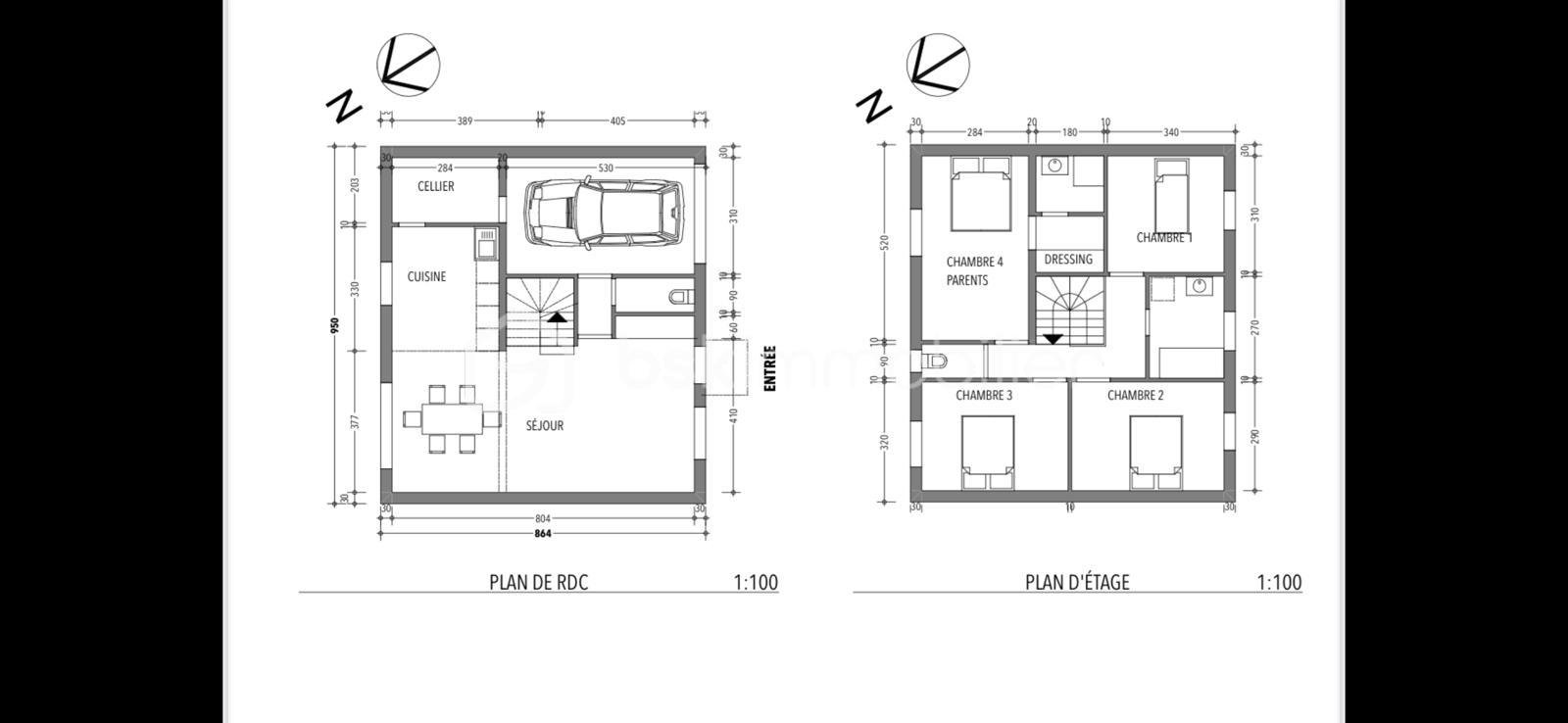
dans le secteur pavillonnaire du VERT GALANT, maison composée d'une entrée sur séjour double (40m²) avec cheminée insert et ouvrant sur une terrasse, cuisine indépendante avec possibilité d'ouvrir sur le séjour pour en faire une cuisine US, arrière cuisine. A l'étage, vous trouverez un dégagement distribuant 4 belles chambres, une salle de bains, un WC. Garage. Le tout sur un terrain de 400m² environ.
Cette annonce référence 302332 vous est présentée par votre agent commercial BSK Immobilier DENIS COLLARD (EI) immatriculé au RSAC de MEAUX (77100) sous le numéro 40288592500055.
Prix du bien : 297 000,00 €
Les honoraires d'agence sont à la charge du vendeur.
A propos des performances énergétiques :
Date de réalisation du diagnostic énergétique : 26/08/2025
Score DPE : 220 kWhEP/m²/an
Score GES : 7 kgepCO2/m²/an
Montant estimé des dépenses annuelles d'énergie pour un usage standard : entre 1810.00 € et 2510.00 € par an. Prix moyens des énergies indexés sur l'année 2023 (abonnements compris).
Les informations sur les risques auxquels ce bien est exposé sont disponibles sur le site Géorisques : www.georisques.gouv.fr
113 m²
2 628 €
400 m²
6
4
1
2
1981
Oui
Consommations énergétiques
Logement économe
220
Logement énergivore (kWhEP/m2/an)
Émissions de gaz à effet de serre
Faible émission de GES
7
Forte émission de GES(kgeqCO2/m2/an)
Contact I@D France - Denis COLLARD
Contacter gratuitement à l'aide du formulaire ci-dessous.