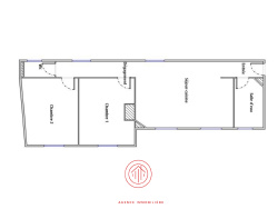
Bienvenue chez Côté Vence Côté Mer Immobilier, votre agence de confiance ! Nous avons le plaisir de vous proposer dans le secteur recherché du Parc Chambrun à Nice, cette maison d'environ 120 m2 offre une configuration intéressante et un fort potentiel d'évolution. Elle se compose actuellement de deux appartements 3 pièces, répartis de manière indépendante, ainsi que d'un garage, apportant un réel confort au quotidien. Une possibilité de réunir les deux lots permet d'envisager la création d'une maison familiale, selon vos besoins et votre projet. Ce bien aux multiples possibilités conviendra aussi bien pour : une résidence principale, un projet familial, un investissement locatif. Son emplacement dans un quartier résidentiel apprécié, à proximité des commodités, des transports et des établissements scolaires, en fait une opportunité sur le secteur. Un bien offrant flexibilité et potentiel, à découvrir sans tarder. Les informations sur les risques auxquels ce bien est exposé sont disponibles sur le site Géorisques : www.georisques.gouv.fr Côté Vence Côté Mer immobilier, spécialisée dans la transaction immobilière de villas, maisons, terrains et appartements du pays Vençois jusqu'au bord de Mer. Une agence à votre écoute pour réaliser votre projet immobilier.
120 m²
5 317 €
153 m²
6
4
2
2
1900
1
Oui
1
Consommations énergétiques
Logement économe
318
Logement énergivore (kWhEP/m2/an)
Émissions de gaz à effet de serre
Faible émission de GES
70
Forte émission de GES(kgeqCO2/m2/an)
Contact Côté Vence Côté Mer Immobilier
Contacter gratuitement à l'aide du formulaire ci-dessous.