Située à Saint-Malo dans le quartier de Paramé/petit Paramé (35400), cette maison récente mitoyenne dans une résidence à proximité des commerces et à seulement 2 km de la plage.
Sur une terrain de 218 m², la maison de 125 m² comprend un garage, une place de parking et un cellier non attenant à la maison.
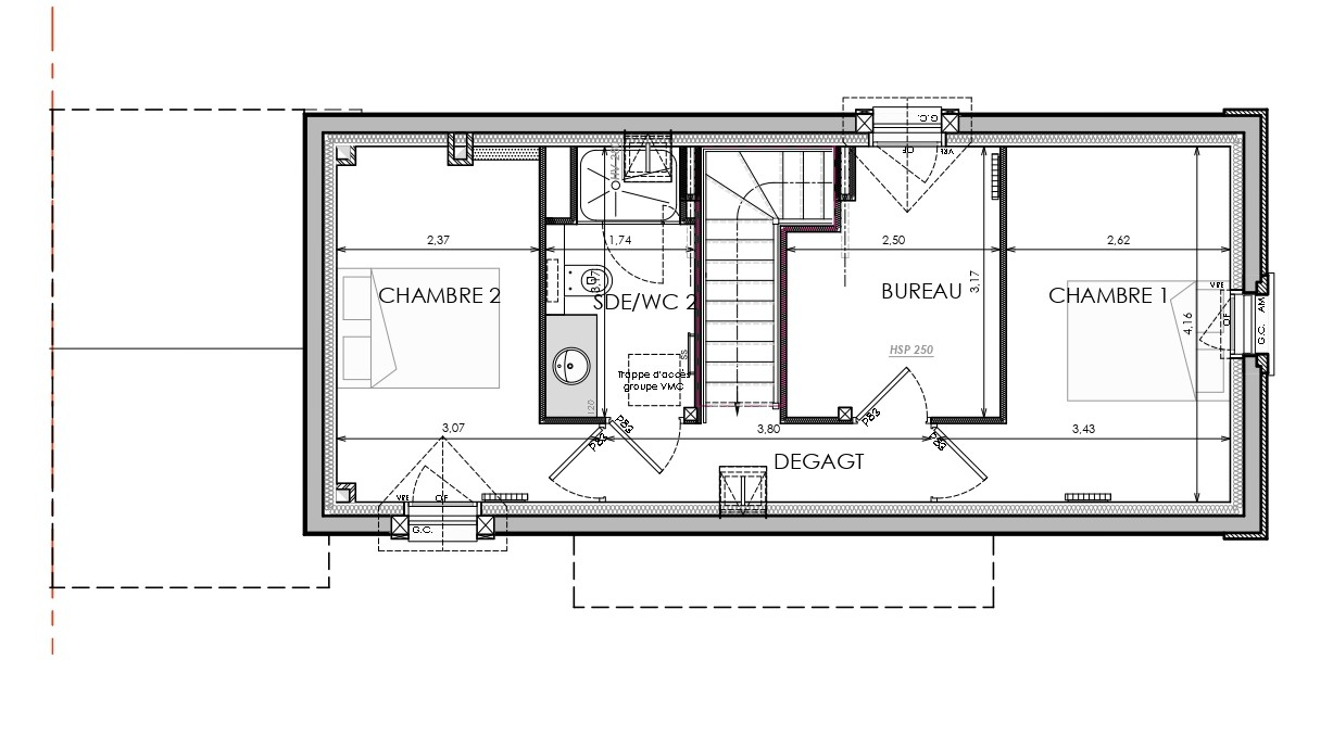
À l'intérieur, cette maison T5 de 2023 se compose d'une entrée, d'une cuisine ouverte sur un lumineux salon/séjour donnant sur une terrasse. Le rez-de-chaussée accueille une chambre, une salle d'eau et un wc. À l'étage, un dégagement dessert trois chambres supplémentaires, une salle de bains et un wc.
Vous trouverez une vidéo sur le site www.megagence.com
Les informations sur les risques auxquels ce bien est exposé sont disponibles sur le site Géorisques : www.georisques.gouv.fr
Prix de vente honoraires d'agence inclus : 472 500 €
Prix de vente hors honoraires d'agence : 450 000 €
Honoraires charge acquéreur : 22 500 € soit 5 % TTC de la valeur du bien hors honoraires
Contactez votre consultant megAgence : Nathalie BOUDINAR, Tél. : 0778780526, E-mail : nathalie.boudinar@megagence.com - EI - Agent commercial immatriculé au RSAC de SAINT-MALO sous le numéro 442 909 180
125 m²
3 780 €
218 m²
5
4
2
1
2
2023
Consommations énergétiques
Logement économe
37
Logement énergivore (kWhEP/m2/an)
Émissions de gaz à effet de serre
Faible émission de GES
1
Forte émission de GES(kgeqCO2/m2/an)
Contact Marc Lelogeais
Contacter gratuitement à l'aide du formulaire ci-dessous.