Maison 149m2 sur 849m2de terrain et dépendances centre village
Villié-Morgon 69910
0
Honoraires à la charge du vendeur.
Villié-Morgon, maison 149m2 sur 849m2de terrain et dépendances centre village.
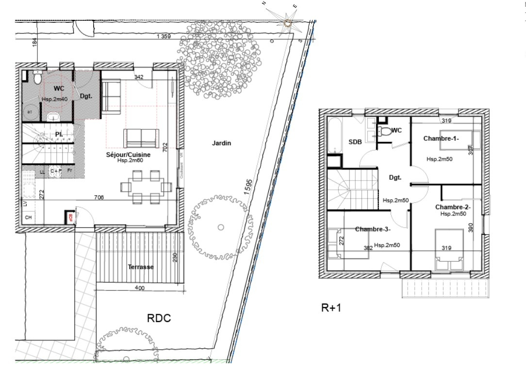
Nichée au coeur d'un village de caractère, vivant et attractif toute l'année, avec toutes les commodités à proximités, venez découvrir cette maison 149 m² habitable, ancien lieu de production de vin, offrant un cachet unique et à fort potentiel : - avec un grenier aménageable d'environ 85m² _un ancien cuvage 5_(85m²) -un atelier -caves -débarras et dortoir vendangeurs La partie habitable comprant au RDC une entrée, une grande cuisine aménagée et équipée, un salon avec une salle à manger te cheminée, un bureau, une chambre, salle de bains, WC et une véranda. A l'étage, 2 chambres et Salle d'eau / WC.
La parcelle de terrain de 849 m² est entièrement close. La maison est raccordé au réseau d'assainissement collectif communal. Chauffage gaz de ville + climatisations réversibles et cheminée. Les huisseries sont en doubles vitrages. Le bien est agrémenté d'un puits.
Au sein d'une commune reconnue pour son patrimoine viticole et son art de vivre à 20 min de l'autoroute du soleil, n'attendez plus et venez visiter cette jolie maison à fort potentiel ! Pour me contacter, Sophie Fromentin 06 61 81 31 43, agent commercial (RSAC 440 973 980) ou par mail à s.fromentin@pietrapolis.fr
Honoraires à la charge du vendeur. Classe énergie E, Classe climat D Montant moyen estimé des dépenses annuelles d'énergie pour un usage standard, établi à partir des prix de l'énergie de l'année 2021 : entre 2420.00 et 3340.00 . Les informations sur les risques auxquels ce bien est exposé sont disponibles sur le site Géorisques : georisques.gouv.fr.