Maison 2 niveaux indépendants ? Triangle d?Or de Pornichet, à 400 m de la plage
Pornichet 44380
0
Située dans un environnement résidentiel très recherché, cette maison bénéficie d'un emplacement privilégié au c?ur du Triangle d'Or, à deux pas de l'église, des commerces, de la gare (700 m) et de la plage (400 m).
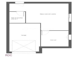
Elle se compose de deux niveaux indépendants :
- À l'étage : un double salon lumineux ouvrant sur un agréable patio, accessible par un escalier extérieur, ainsi qu'une chambre, une salle d'eau avec WC et un grenier non aménagé.
- Au rez-de-chaussée : un salon avec cuisine ouverte, une chambre et une salle d'eau avec WC. et un garage/buanderie de 15 m².
Un bien rare à la vente dans ce secteur recherché, offrant à la fois indépendance et proximité immédiate de toutes les commodités.
Cette annonce référence 284962 vous est présentée par votre agent commercial BSK Immobilier JERÔME MELCHIOR (EI) immatriculé au RSAC de PARIS-4E-ARRONDISSEMENT (75004) sous le numéro 75147786000025.
Prix du bien : 585 000,00 €
Les honoraires d'agence sont à la charge du vendeur.
A propos des performances énergétiques :
Date de réalisation du diagnostic énergétique : 23/04/2025
Score DPE : 319 kWhEP/m²/an
Score GES : 54 kgepCO2/m²/an
Montant estimé des dépenses annuelles d'énergie pour un usage standard : entre 2290.00 € et 3140.00 € par an. Prix moyens des énergies indexés sur l'année 2021 (abonnements compris).
Les informations sur les risques auxquels ce bien est exposé sont disponibles sur le site Géorisques : www.georisques.gouv.fr
81 m²
7 222 €
154 m²
5
2
2
1953
Oui
Consommations énergétiques
Logement économe
319
Logement énergivore (kWhEP/m2/an)
Émissions de gaz à effet de serre
Faible émission de GES
54
Forte émission de GES(kgeqCO2/m2/an)
Contact MELCHIOR JERÔME
Contacter gratuitement à l'aide du formulaire ci-dessous.