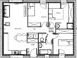
Votre maison à bâtir de plus de 80m², 3 chambres, de plain-pied et sur sa parcelle de plus de 340m², c'est avec Creatik Solution !
Cette maison dispose également d'un séjour ouvert sur la cuisine, d'un WC et d'une sdb séparée.
Nous vous accompagnons du plan élaboré sur mesure en fonction de vos besoins, à la remise des clés pour accomplir votre rêve : devenir propriétaire en respectant votre budget !
Cette maison RE2020 en prêt à finir est hors frais annexes, foncier inclus sous réserve de disponibilités et construction Creatik Solution incluse.
Les photos sont non contractuelles puisque la décoration sera à votre goût ! Bénéficiez du PTZ sans tardez
73 m²
2 405 €
341 m²
4
3
Contact CREATIK SOLUTION
Contacter gratuitement à l'aide du formulaire ci-dessous.