**Maisonnette à Vendre - Monflanquin, Résidence du Lac**
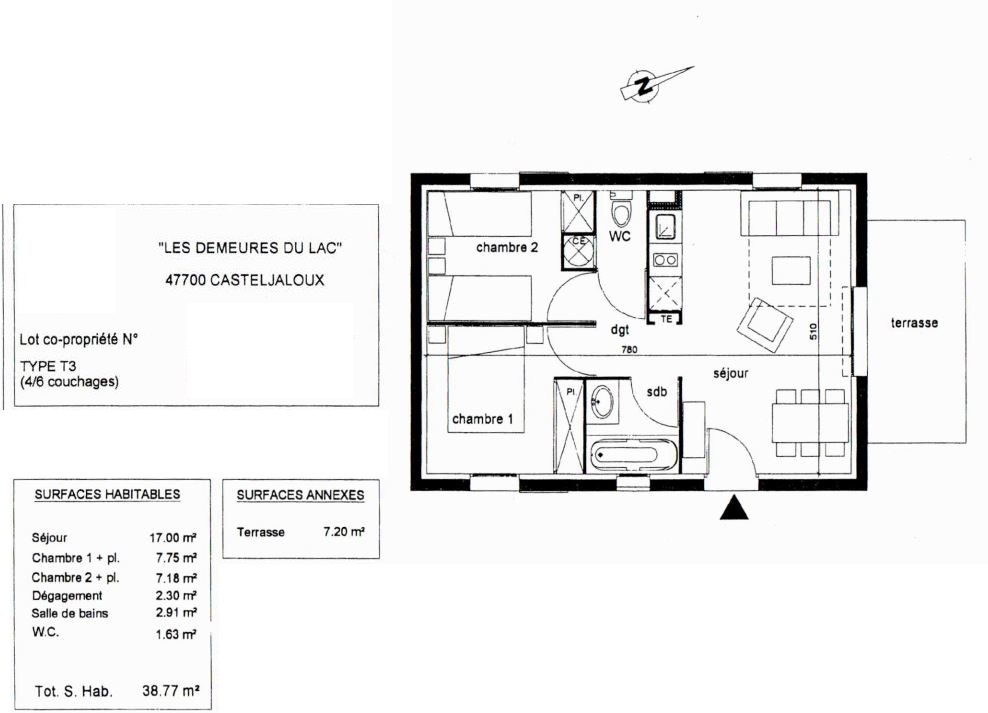
Découvrez cette charmante maisonnette à Monflanquin, nichée dans la paisible Résidence du Lac. Avec 39,11 m² (Loi Carrez) bien agencés, cette maison duplex comprend un séjour, une cuisine, deux chambres, une salle de bain, un WC séparé, et une terrasse orientée à l'ouest, offrant un espace extérieur accueillant.
**Informations Financières :** - Prix : 60 000, incluant les frais d'agence (honoraires à la charge du vendeur). - Taxe Foncière : 485. - Charges : 2 000 par an
Cette maisonnette représente une opportunité idéale pour ceux qui cherchent un pied-à-terre confortable à Monflanquin. Que ce soit pour une résidence secondaire ou un investissement, elle offre un cadre accueillant à un prix attractif.
Pour plus d'informations ou pour planifier une visite, contactez-nous dès maintenant : 0661967364 ou thomas@maeva.immo. Ne laissez pas passer cette opportunité à Monflanquin !
Honoraires à la charge du vendeur. Dans une copropriété de 111 lots. Aucune procédure n'est en cours. Classe énergie E, Classe climat B Montant moyen estimé des dépenses annuelles d'énergie pour un usage standard, établi à partir des prix de l'énergie de l'année 2021 : entre 710.00 et 1010.00 . Les informations sur les risques auxquels ce bien est exposé sont disponibles sur le site Géorisques : georisques.gouv.fr.
39.31 m²
1 068 €
3
2
1
1 (séparé)
Oui
1
1
Oui
Oui (111 lots)
Consommations énergétiques
Logement économe
287
Logement énergivore (kWhEP/m2/an)
Émissions de gaz à effet de serre
Faible émission de GES
9
Forte émission de GES(kgeqCO2/m2/an)
Contact Maeva Home immo
Contacter gratuitement à l'aide du formulaire ci-dessous.