Maison neuve à construire JONQUILLE_1CH_58_V2
Découvrez ce projet de construction d'une maison neuve individuelle sur un terrain idéalement situé à Châteaudun, à proximité immédiate de toutes les commodités : commerces, écoles, transports, gare SNCF.
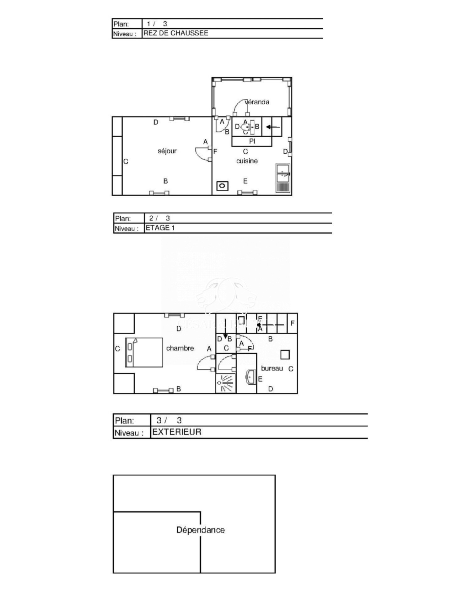
BELLE MAISON DE 1 CHAMBRES
Cette maison de 1 chambres offre une distribution des pièces optimisée sur une superficie de 58 m2 habitables. Ce plan compact et adaptable grâce aux combles aménageables a été pensé pour faciliter l'accès à la propriété à un budget maîtrisé.
? Lumineuse avec cuisine ouverte donnant sur son jardin.
? Beaux volumes et distribution optimisée des pièces pour votre confort de vie.
? Aménagements et équipements de haut niveau : volets roulants motorisés et connectés, système de chauffage par pompe à chaleur, domotique, carrelage grand format.
ET SI VOUS FAISIEZ CONSTRUIRE AVEC MAISONS ALYSIA ?
Testez notre configurateur en ligne et chiffrez instantanément votre projet personnalisé, téléchargeable.
? Gratuit, rapide et sans engagement.
? + de 130 modèles de maisons personnalisables.
? Calculettes en ligne pour identifier votre budget et évaluer votre future mensualité.
Rendez-vous sur notre site maisons-alysia(.com) pour concrétiser votre rêve.
Contactez nous au 02.30.32.39.00 pour finaliser votre projet !
Coût du terrain inclus dans cette offre.
Hors peintures et faïence, revêtements de sol des chambres.
Hors assurance dommages ouvrage, frais de notaire et frais d'adaptation du terrain éventuels.
Cette offre est proposée en collaboration avec notre partenaire foncier selon disponibilités.
Contact : au 02 30 32 39 00.