Propriété atypique de 423 m²
Vous recherchez un bien unique alliant charme et potentiel, Cette propriété atypique en Dordogne est faite pour vous !
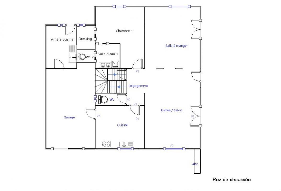
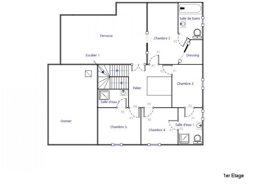
Un espace de vie hors du commun
Ancien bâtiment industriel de 423 m², cette maison propose deux habitations distinctes, idéales pour une résidence principale et un projet locatif.
Les habitations
- 147 m² : Séjour, cuisine sur terrasse, 3 chambres, dressing, salle d'eau.
- 119 m² : Pièce de vie 72 m², 2 chambres, salle d'eau.
Extérieur et commodités
- Jardin de 380 m², cour de 397 m² avec piscine couverte.
- Entrée de 318 m², parking de 1 260 m².
- Garage de 150 m² : atelier, bureaux ou logement supplémentaire.
- Accès rapide à l'A89, proche Bordeaux et Périgueux.
Atouts techniques
- Poêles à pellets, double vitrage alu/PVC, isolation laine projetée.
Un bien rare et plein de possibilités ! **Contactez-nous pour une visite.**
Les informations sur les risques auxquels ce bien est exposé sont disponibles sur le site Géorisques : www.georisques.gouv.fr »
266 m²
936 €
2831 m²
7
5
2
2
1950
Séparée
Oui
Oui
Consommations énergétiques
Logement économe
217
Logement énergivore (kWhEP/m2/an)
Émissions de gaz à effet de serre
Faible émission de GES
12
Forte émission de GES(kgeqCO2/m2/an)
Contact SELECTION HABITAT
Contacter gratuitement à l'aide du formulaire ci-dessous.