29520 CHATEAUNEUF-DU-FAOU - MAISON ANNÉE 70 - DPE D - 5 PIÈCES - 4 CHAMBRES - 110.0 M² - SOUS-SOL - JARDIN
effiCity, l'agence qui estime votre bien en ligne, vous propose en EXCLUSIVITÉ cette charmante maison lumineuse des années 1970 située sur une parcelle de 754 m² dans un quartier calme proche du centre-ville.
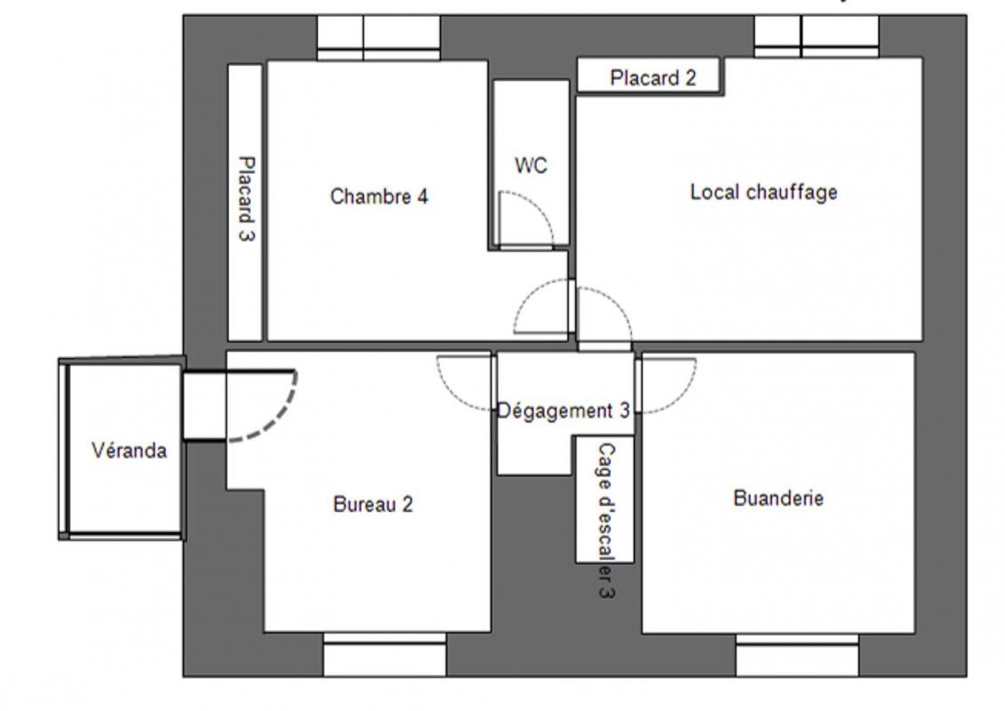
Avec une surface d'environ 110 m², cette maison prête à vivre offre au rez-de-chaussée surélevé une entrée, un séjour-salon avec cheminée ouvert sur une mini-véranda avec vue sur le jardin, une cuisine séparée, deux belles chambres, une salle d'eau récente et un WC indépendant.
Un escalier vous conduit à l'étage, où un palier dessert deux chambres lumineuses et confortables. Vous y trouverez également plusieurs greniers à aménager selon vos envies : créez un dressing, un espace jeux, un bureau ou même une salle d'eau supplémentaire? .
Le sous-sol complet, isolé, offre un espace garage + pièce de rangement ou atelier.
Vous apprécierez : double vitrage PVC, assainissement conforme, peintures récentes, DPE D, Jardin.
Une maison familiale chaleureuse, évolutive et proche des commodités, idéale pour se projeter sereinement.
Les informations sur les risques auxquels ce bien est exposé sont disponibles sur le site Georisque : georisques. gouv. fr
Véronique Talhouet - Le Boulch - EI - est Agent Commercial mandataire en immobilier, immatriculé au Registre Spécial des Agents Commerciaux du Tribunal de Commerce de Lorient sous le n°844720797.
Siège social du mandant : effiCity, 48 avenue de Villiers - 75017 PARIS - Société par Actions Simplifiée, société au capital de 132 373,05 euros, immatriculée au RCS Paris 497 617 746 et titulaire de la Carte professionnelle CPI 7501 2015 000 002 025 - CCI Paris IDF - Caisse de Garantie : GALIAN Assurances 89 rue de la Boétie 75008 Paris
110 m²
1 604 €
754 m²
5
4
1
1
1968
Oui
Oui
Consommations énergétiques
Logement économe
249
Logement énergivore (kWhEP/m2/an)
Émissions de gaz à effet de serre
Faible émission de GES
47
Forte émission de GES(kgeqCO2/m2/an)
Contact Mme Véronique Talhouet - Le Boulch
Contacter gratuitement à l'aide du formulaire ci-dessous.