92260 FONTENAY-AUX-ROSES - MAISON CALME ET LUMINEUSE ORIENTÉE SUD AVEC 5 CHAMBRES ET 2 GRANDES TERRASSES DONNANT SUR UN JARDIN ARBORÉ - Efficity, l'agence spécialisée dans l'estimation de biens en ligne vous propose cette maison de charme située dans un quartier résidentiel à deux minutes à pied de la gare de Fontenay-aux-Roses et à proximité immédiate des commerces, des écoles, de la Coulée Verte et du Parc de Sceaux.
Rénovée en 2022, cette maison d'une superficie de 173,73 m² (dont 130,73 m² Carrez) est édifiée sur un terrain de 300 m² et donne sur un jardin de 250 m².
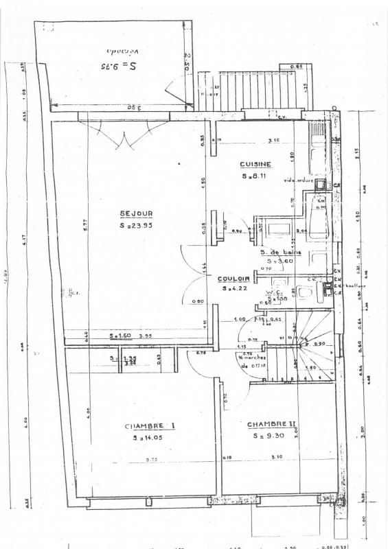
D'une luminosité exceptionnelle, la maison se compose d'un vaste espace de vie ouvert et traversant avec une triple exposition (entrée/séjour/salle à manger/cuisine) et donnant sur une terrasse orientée plein Sud, d'une cuisine ouverte (qu'il est possible de séparer), de 5 chambres, d'une buanderie/cave, de deux salles de bains, d'une salle de douche et de trois toilettes (dont un séparé).
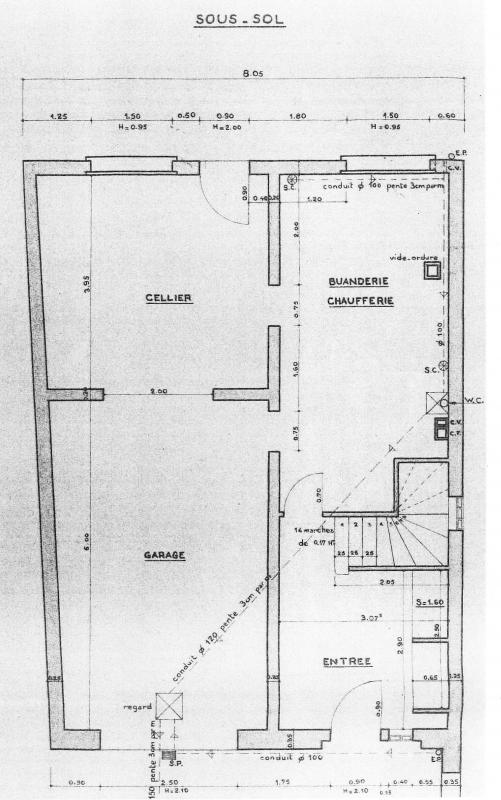
En rez-de-jardin, un studio indépendant avec séjour, cuisine, chambre et salle de douche avec toilettes.
La maison dispose également d'un vaste garage ainsi que d'une deuxième place de parking dans l'allée accessibles par un portail électrique.
Niveau 1 - rez-de-jardin d'une superficie au sol de 59,90 m² comprenant :
- Séjour, cuisine, salle de douche et toilettes 1 : 16,17 m² Carrez
- Chambre 5 : 9,58 m² Carrez
- Buanderie : 15,60 m²
- Garage : 18,55 m²
Niveau 2 - rez-de-chaussée d'une superficie Carrez de 59,48 m² comprenant :
- Entrée : 8,15 m² Carrez
- Séjour : 29,01 m² Carrez
- Cuisine : 9,41 m² Carrez
- Chambre 1 : 9,55 m² Carrez
- Salle de bains avec toilettes : 3,36 m² Carrez
Niveau 3 - étage d'une superficie au sol de 54,35 m² comprenant :
- Chambre 2 : 15,42 m²
- Chambre 3 : 11,15 m²
- Chambre 4 : 10,01 m²
- Salle de bains : 13,31 m²
- Toilettes : 0,96 m²
- Palier 3,41 m²
Information complémentaires :
- Commerces essentiels (boulangerie, épicerie, pharmacie, restaurants?) à 1 minute à pied
- Gare RER B de Fontenay-aux-Roses à 2 minutes à pied (centre de Paris en 15 minutes)
- Coulée verte à 5 minutes à pied
- Parc de Sceaux à 10 minutes à pied
- Carte scolaire : proximité Lycée Marie-Curie, Lycée Lakanal et Classe Prépa, Université Paris Saclay (faculté de droit Jean Monnet et IUT de Sceaux)
- Pas de mitoyenneté
- Pas de vis-à-vis
- Idéal pour profession libérale
.
Mon équipe et moi restons à votre écoute pour toute estimation ou vente de biens immobiliers partout en France.
.
Nous sommes également en quête de deux consultants indépendants basés dans le 14ème arrondissement de Paris et ses environs, afin de compléter notre effectif parisien.
.
Les informations sur les risques auxquels ce bien est exposé sont disponibles sur le site Georisque : georisques. gouv. fr
Michel Janevski - EI - est Agent Commercial mandataire en immobilier, immatriculé au Registre Spécial des Agents Commerciaux du Tribunal de Commerce de Paris sous le n°880937503.
Siège social du mandant : effiCity, 48 avenue de Villiers - 75017 PARIS - Société par Actions Simplifiée, société au capital de 132 373,05 euros, immatriculée au RCS Paris 497 617 746 et titulaire de la Carte professionnelle CPI 7501 2015 000 002 025 - CCI Paris IDF - Caisse de Garantie : GALIAN Assurances 89 rue de la Boétie 75008 Paris
150 m²
5 300 €
50 m²
300 m²
8
5
3
1
3
1930
Sud
Oui
Oui
Consommations énergétiques
Logement économe
206
Logement énergivore (kWhEP/m2/an)
Émissions de gaz à effet de serre
Faible émission de GES
28
Forte émission de GES(kgeqCO2/m2/an)
Contact Michel Janevski
Contacter gratuitement à l'aide du formulaire ci-dessous.