JONAGE -69330? Maison familiale 162 m² ? 3 chambres ? Garage 32 m² ? Terrain 1 008 m²
?Un grand jardin pour les jeux d'enfants, une terrasse pour les soirées d'été? et toute une maison pour écrire votre histoire.?
Au calme d'un quartier résidentiel de Jonage, cette maison familiale rénovée en 2020 invite à profiter d'un quotidien paisible, tout en restant proche des commodités et de Lyon.
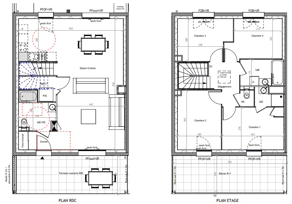
Implantée sur un grand terrain plat et arboré de plus de 1 000 m², elle se déploie sur deux niveaux où chaque espace a été pensé pour conjuguer confort et convivialité.
À l'étage, la lumière traverse le vaste séjour toute la journée grâce à sa triple exposition. Le salon et la salle à manger s'ouvrent sur une cuisine contemporaine entièrement équipée, conviviale et fonctionnelle. Un balcon permet de prolonger les beaux jours à l'extérieur. L'espace nuit propose deux chambres, dont une avec espace dressing, ainsi qu'une salle d'eau moderne.
?Imaginez vos matinées ensoleillées sur le balcon, vos après-midis d'été autour du jardin, vos soirées au coin du salon lumineux.?
En rez-de-chaussée, une troisième chambre avec salle d'eau privative offre autonomie et confort. Un bureau, une buanderie et un grand garage complètent ce niveau, pensé pour s'adapter aux besoins d'une famille active.
À l'extérieur, le jardin clos et arboré offre de multiples possibilités : accueillir une piscine, aménager une cuisine d'été ou simplement profiter d'un coin ombragé sous l'auvent.
?Un cadre paisible où les enfants grandissent, où les amis se retrouvent, où l'on se sent tout simplement bien.?
Côté pratique, La maison se situe à 250m de l'école élémentaire (3min à pied), à 3,5km du collège (12min à vélo), à 4km du Lycée (14min en bus). L'aéroport Lyon St Exupéry se situe à 15 minutes en voiture.
Tram T3 (Meyzieu Lyon Part Dieu ) est à 5 minutes en voiture.
Une maison clé en main, chaleureuse et fonctionnelle, et très économique grâce à son classement énergétique A, prête à accueillir de nouveaux projets de vie.
Prestations techniques :
- Rénovation complète en 2020 : électricité, plomberie, revêtements de sol, plafond, salles d'eau, cuisine.
- Sol en parquet, spots LED intégrés au plafond, climatisation réversible dans le séjour et les chambres pour un confort optimal toute l'année.
- Chauffe-eau thermodynamique, pompe à chaleur, thermostats individuels dans chaque chambre.
- Menuiseries double vitrage, volets roulants motorisés, climatisation dans toutes les pièces à vivre.
- Adoucisseur d'eau, VMC dans toutes les pièces d'eau, sèche-serviettes dans chaque salle d'eau.
- Pré-équipement pour une cuisine d'été en extérieur.
Contactez-moi pour visiter et découvrir combien cette maison peut devenir votre nouveau foyer. Elle est prête à accueillir vos projets, vos repas, vos instants partagés.
Valérie Le Gueuziec, votre conseiller indépendant vous invite à découvrir les atouts de cette maison à vendre en prenant RDV par téléphone ou mail : 06 67 10 62 84 -vlegueuziec-groupec2i@efficity.com
L'annonce a été rédigée sous la responsabilité éditoriale de Valérie Le Gueuziec, EI, agent commercial enregistré au Tribunal de Commerce de Lyon sous le numéro RSAC 817677339. DPE réalisé le 13 janvier 2025. Montant estimé des dépenses annuelles d'énergie pour un usage standard: entre 860 € et 1220 € par an. Prix moyens des énergies indexés sur l'année 2021,2022,2023 (abonnements compris)
Les informations sur les risques auxquels ce bien est exposé sont disponibles sur le site Géorisques : www.georisques.gouv.fr
Les informations sur les risques auxquels ce bien est exposé sont disponibles sur le site Georisque : georisques. gouv. fr
Valérie Agopian Le Gueuziec - EI - est Agent Commercial mandataire en immobilier, immatriculé au Registre Spécial des Agents Commerciaux du Tribunal de Commerce de Lyon 3e Arrondissement sous le n°817677339.
Siège social du mandant : effiCity, 48 avenue de Villiers - 75017 PARIS - Société par Actions Simplifiée, société au capital de 132 373,05 euros, immatriculée au RCS Paris 497 617 746 et titulaire de la Carte professionnelle CPI 7501 2015 000 002 025 - CCI Paris IDF - Caisse de Garantie : GALIAN Assurances 89 rue de la Boétie 75008 Paris
162 m²
2 772 €
1008 m²
5
3
2
1982
Ouest
Oui
Oui
Consommations énergétiques
Logement économe
66
Logement énergivore (kWhEP/m2/an)
Émissions de gaz à effet de serre
Faible émission de GES
2
Forte émission de GES(kgeqCO2/m2/an)
Contact LeGueuziec Valerie
Contacter gratuitement à l'aide du formulaire ci-dessous.