Villeneuve-de-la-Raho ? Maison de village avec terrasse ? À deux pas du lac ? Calme & lumineuse
EffiCity, l'agence qui estime votre bien en ligne, vous présente en exclusivité cette charmante maison de village idéalement située, à seulement 10 minutes à pied du lac de Villeneuve-de-la-Raho.
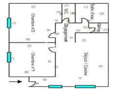
Baignée de lumière grâce à son exposition sud-ouest et sa configuration traversante (deux faces), cette villa de 80 m² offre un cadre de vie agréable et paisible.?À l'étage, vous découvrirez un vaste séjour avec cuisine ouverte de plus de 25 m², deux grandes chambres avec placards intégrés, une salle d'eau fonctionnelle et des WC indépendants.
Au rez-de-chaussée : un grand garage avec espace atelier, idéal pour les bricoleurs ou le stockage.
Côté extérieur, profitez d'une belle terrasse de 40 m², parfaite pour vos moments de détente ou repas en plein air.
Maison en excellent état, équipée de la climatisation réversible pour un confort optimal en toutes saisons.
Situation privilégiée, à proximité immédiate du lac, des commerces et des écoles.
Une belle opportunité à ne pas manquer ! Contactez-nous dès maintenant pour organiser une visite.
Les informations sur les risques auxquels ce bien est exposé sont disponibles sur le site Georisque : georisques. gouv. fr
Philippe Perez - EI - est Agent Commercial mandataire en immobilier, immatriculé au Registre Spécial des Agents Commerciaux du Tribunal de Commerce de Paris sous le n°512428012.
Siège social du mandant : effiCity, 48 avenue de Villiers - 75017 PARIS - Société par Actions Simplifiée, société au capital de 132 373,05 euros, immatriculée au RCS Paris 497 617 746 et titulaire de la Carte professionnelle CPI 7501 2015 000 002 025 - CCI Paris IDF - Caisse de Garantie : GALIAN Assurances 89 rue de la Boétie 75008 Paris
50 m²
3 800 €
40 m²
4
2
1
1
Oui
Oui
Consommations énergétiques
Logement économe
80
Logement énergivore (kWhEP/m2/an)
Émissions de gaz à effet de serre
Faible émission de GES
12
Forte émission de GES(kgeqCO2/m2/an)
Contact M. Philippe Perez
Contacter gratuitement à l'aide du formulaire ci-dessous.