17180, PÉRIGNY ? MAISON NON-MITOYENNE DE 100 M² ? 5 PIÈCES ? TERRASSE ? JARDIN SUD ? SOUS-SOL AMÉNAGÉ ? ENVIRONNEMENT CALME
Raphaël Charbonnier vous propose en exclusivité cette maison de 100 m² habitables, non-mitoyenne, implantée sur une parcelle de 603 m², avec terrasse, jardin exposé plein sud et sous-sol aménagé, située dans un quartier résidentiel calme de Périgny.
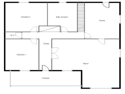
Disposition du bien
La maison comprend :
Un séjour lumineux d'environ 30 m²,
Une cuisine indépendante de 12 m², entièrement refaite en 2024, ouverte sur une terrasse donnant sur le jardin,
Trois chambres,
Une salle de bain équipée d'une douche et d'une baignoire,
Une salle d'eau,
Deux WC,
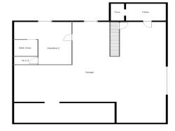
Un sous-sol aménagé comprenant notamment garage, cellier et cave.
Extérieurs
Jardin clos et ensoleillé, exposé plein sud,
Terrasse attenante à la cuisine, idéale pour les repas extérieurs,
Plusieurs places de stationnement privatives.
Travaux réalisés (environ 100 000 € investis par les propriétaires actuels)
Pompe à chaleur air/eau installée en avril 2024 (remplacement de l'ancienne chaudière gaz),
Cuisine neuve (juin 2024),
Électricité remise aux normes (juin 2024),
6 kW de panneaux solaires installés en juin 2024,
Menuiseries remplacées par du double vitrage PVC (2016),
Toiture entièrement refaite (2022),
Isolation des combles (2014),
VMC remplacée il y a 5 ans,
Drain d'étanchéité et bardage posés en 2024,
Adoucisseur d'eau (2020),
Système d'osmose inclus pour l'eau de consommation.
Localisation
Arrêt de bus « Les Palombes » à 6 min à pied,
École primaire à 8 min à pied,
Centre-ville de La Rochelle à moins de 20 min en voiture.
Informations complémentaires
Taxe foncière : 1 930 €
DPE : B
Chauffage et eau chaude : pompe à chaleur air/eau
Exposition : plein sud
Atout
Quelques travaux de mise au goût du jour peuvent être envisagés pour personnaliser les lieux, mais la maison est saine, parfaitement entretenue et habitable immédiatement.
Financement
Si vous avez besoin d'un financement, n'hésitez pas à me contacter.
Je travaille avec des partenaires courtiers efficaces et réactifs qui pourront vous aider.
Réseau professionnel ? Collaboration inter-cabinet
CHER RÉSEAU, CONS?URS, CONFRÈRES
Si vous êtes un(e) professionnel(le) de l'immobilier (agent, mandataire ou chasseur immobilier), sachez que pour ce bien je suis ouvert à la collaboration et à l'inter-cabinet.
N'hésitez pas à me contacter pour en discuter.
Je serai ravi de vous faire visiter ce bien.
N'hésitez pas à me contacter et à prendre rendez-vous.
Les informations sur les risques auxquels ce bien est exposé sont disponibles sur le site Georisque : georisques. gouv. fr
Raphaël Charbonnier - EI - est Agent Commercial mandataire en immobilier, immatriculé au Registre Spécial des Agents Commerciaux du Tribunal de Commerce de La Rochelle sous le n°908071210.
Siège social du mandant : effiCity, 48 avenue de Villiers - 75017 PARIS - Société par Actions Simplifiée, société au capital de 132 373,05 euros, immatriculée au RCS Paris 497 617 746 et titulaire de la Carte professionnelle CPI 7501 2015 000 002 025 - CCI Paris IDF - Caisse de Garantie : GALIAN Assurances 89 rue de la Boétie 75008 Paris
100 m²
3 250 €
30 m²
603 m²
5
3
1
1
2
1995
Sud
Oui
Oui
Consommations énergétiques
Logement économe
95
Logement énergivore (kWhEP/m2/an)
Émissions de gaz à effet de serre
Faible émission de GES
3
Forte émission de GES(kgeqCO2/m2/an)
Contact M. Raphaël Charbonnier
Contacter gratuitement à l'aide du formulaire ci-dessous.