91130 RIS-ORANGIS - QUARTIER PAVILLONNAIRE SECTEUR DRANEM - 4 CHAMBRES - MAISON - GARE RER D A 500m - JARDIN - GARAGE - AU CALME - CHAUDIERE NEUVE - PHOTOS ET DIAGNOSTICS TECHNIQUES SUR DEMANDE
Opportunité d'une MAISON A RENOVER à Ris-Orangis
Le bien présente des FISSURATIONS liées au contexte géotechnique local (Retrait-Gonflement des Argiles ).
Les DIAGNOSTICS DE STRUCTURE ET GEOTECHNIQUE G5 sont réalisés et confirment l'origine des désordres, tout en détaillant les solutions de renforcement adaptées (mise en ?uvre de prescriptions constructives ad hoc).
L'étude structurelle et le rapport G5 servent de feuille de route technique pour sécuriser votre investissement. Le lancement des travaux est la première étape de la rénovation pour garantir la pérennité de la maison
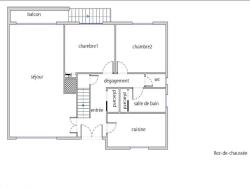
efficity, l'agence qui estime votre bien en ligne, vous présente cette MAISON de 5 PIÈCES et 4 CHAMBRES, d'une surface de 115 m², implantée dans un QUARTIER CALME et RESIDENTIEL de Ris-Orangis.
Cette maison se compose de TROIS NIVEAUX.
LA DOUBLE EXPOSITION NORD SUD confère à cette demeure une luminosité naturelle tout au long de la journée. Le jardin et la maison sont sur une parcelle de plus de 450.0 m², idéal pour profiter de moments de détente en plein air.
Un SOUS-SOL avec GARAGE et FENETRES est inclus, offrant ainsi un stationnement intérieur sécurisé pour votre véhicule, garantissant praticité et tranquillité au quotidien. Des véhicules peuvent aussi être garés sur la parcelle.
Proposée à un PRIX de 230 000 €, cette MAISON représente une opportunité rare sur le marché local. Pour plus d'INFORMATIONS ou pour organiser une visite, contactez-nous au 06 88 84 51 25 ou par mail : avautrin@efficity.com.
Les informations sur les risques auxquels ce bien est exposé sont disponibles sur le site Georisque : georisques. gouv. fr
Arnaud Vautrin - EI - est Agent Commercial mandataire en immobilier, immatriculé au Registre Spécial des Agents Commerciaux du Tribunal de Commerce de BOBIGNY sous le n°488044280.
Siège social du mandant : effiCity, 48 avenue de Villiers - 75017 PARIS - Société par Actions Simplifiée, société au capital de 132 373,05 euros, immatriculée au RCS Paris 497 617 746 et titulaire de la Carte professionnelle CPI 7501 2015 000 002 025 - CCI Paris IDF - Caisse de Garantie : GALIAN Assurances 89 rue de la Boétie 75008 Paris
115 m²
2 000 €
462 m²
5
4
2
Nord
Oui
Oui
Consommations énergétiques
Logement économe
289
Logement énergivore (kWhEP/m2/an)
Émissions de gaz à effet de serre
Faible émission de GES
62
Forte émission de GES(kgeqCO2/m2/an)
Contact M. Arnaud Vautrin
Contacter gratuitement à l'aide du formulaire ci-dessous.