33800 - BORDEAUX NANSOUTY CAUDERES - 4 PIÈCES - 2 CHAMBRES - MAISON 107.0 m² avec GARAGE 12,7 m² plus 25m² de mezzanine et Spa
efficity, l'agence qui estime votre bien en ligne, vous propose cette charmante maison située au c?ur d'un quartier résidentiel prisé de Bordeaux, offrant un cadre de vie paisible et confortable.
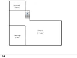
Nichée dans un environnement calme et verdoyant, cette maison sur deux niveaux, d'une surface de 107.0 m² (plus une grande mezzanine et un garage), vous séduira par ses nombreux atouts.
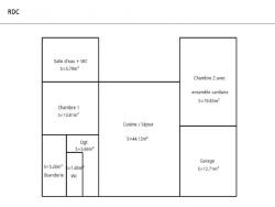
Dès l'entrée un vaste séjour de 44.0 m², baigné de lumière matinale grâce à son exposition Est, offre une atmosphère chaleureuse et conviviale.
De plus, à l'étage, une grande mezzanine avec salle d'eau offre un espace supplémentaire, parfait pour aménager selon vos besoins.
Côté nuit, au rez de chaussée, la maison dispose de deux espaces bien séparés avec d'un côté une chambre avec sa salle de bain et un grand dressing.
De l'autre côté, la seconde chambre avec sa salle d'eau partage l'espace avec une buanderie, un dressing et des wc séparés.
La terrasse de 25.0 m², véritable havre de paix agrémenté d'un spa intégré, vous permettra de profiter de moments de convivialité en extérieur en toute intimité.
Tout est prêt pour installer une cuisine d'été
Ancien garage parfaitement reconditionné en maison de type loft il y a une dizaine d'année, ce bien est toujours dans un bon état général qui ne nécessite que peu de travaux de rafraichissement.
Vous pourrez stationner votre véhicule dans le garage attenant en toute sécurité.
Contactez-nous dès maintenant pour organiser une visite et découvrir ce petit bijou au c?ur de Bordeaux !
Les informations sur les risques auxquels ce bien est exposé sont disponibles sur le site Georisque : georisques. gouv. fr
Cédric Denis - EI - est Agent Commercial mandataire en immobilier, immatriculé au Registre Spécial des Agents Commerciaux du Tribunal de Commerce de Bordeaux sous le n°508891058.
Siège social du mandant : effiCity, 48 avenue de Villiers - 75017 PARIS - Société par Actions Simplifiée, société au capital de 132 373,05 euros, immatriculée au RCS Paris 497 617 746 et titulaire de la Carte professionnelle CPI 7501 2015 000 002 025 - CCI Paris IDF - Caisse de Garantie : GALIAN Assurances 89 rue de la Boétie 75008 Paris
107 m²
4 439 €
44 m²
165 m²
4
2
1
2
2
Oui
Oui
Consommations énergétiques
Logement économe
166
Logement énergivore (kWhEP/m2/an)
Émissions de gaz à effet de serre
Faible émission de GES
25
Forte émission de GES(kgeqCO2/m2/an)
Contact M. Cédric Denis
Contacter gratuitement à l'aide du formulaire ci-dessous.