VOUVRAY - 01200 VALSERHÔNE - ENVIRONNEMENT PRIVILEGIE POUR CE PROGRAMME NEUF :
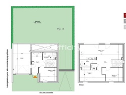
CETTE MAISON T4 d'une surface habitable de 95.12 m2 BENEFICIE D'UN JARDIN DE 175 m2
La résidence " LE VERDI " propose des appartements du T2 AU T3 et des maisons mitoyennes du T4 AU T5.
Un espace vert commun sera aménagé pour le bonheur des familles.
Pour compléter le tout, chaque logement dispose d'un garage ou d'une place de parking. Depuis la résidence, vous rejoindrez en quelques minutes l'entrée autoroute A40 GENEVE/LYON, le futur village de marques, commerces
mais aussi le plateau du Retord pour les amoureux de la nature, du ski et des randonnées pédestres.
Une école se situe à 500m.
LIVRAISON JUIN 2026
Eligible au prêt à taux 0%
Les informations sur les risques auxquels ce bien est exposé sont disponibles sur le site Georisque : georisques. gouv. fr
Patricia Bernasconi - EI - est Agent Commercial mandataire en immobilier, immatriculé au Registre Spécial des Agents Commerciaux du Tribunal de Commerce de Bourg- En-Bresse sous le n°881205314.
Siège social du mandant : effiCity, 48 avenue de Villiers - 75017 PARIS - Société par Actions Simplifiée, société au capital de 132 373,05 euros, immatriculée au RCS Paris 497 617 746 et titulaire de la Carte professionnelle CPI 7501 2015 000 002 025 - CCI Paris IDF - Caisse de Garantie : GALIAN Assurances 89 rue de la Boétie 75008 Paris
95 m²
3 316 €
175 m²
4
3
2
Oui
Oui
Consommations énergétiques
Logement économe
15
Logement énergivore (kWhEP/m2/an)
Émissions de gaz à effet de serre
Faible émission de GES
10
Forte émission de GES(kgeqCO2/m2/an)
Contact Mme Patricia Bernasconi
Contacter gratuitement à l'aide du formulaire ci-dessous.