Maison neuve ? Vente sur plan ? Personnalisez votre futur chez-vous !
Située dans un environnement calme et recherché de la vallée des gaves , cette maison neuve mitoyenne jumelée par les garages (VEFA ? Vente en l'état futur d'achèvement) allie confort moderne, économie d'énergie et finitions de qualité.
Caractéristiques principales :
_ Surface habitable : 85.8 m²
_ Terrain : 375 m²
_ 4 pièces / 3 chambres
_ Grande pièce de vie lumineuse avec cuisine ouverte entièrement équipée ( four ,plaque ,hotte ,lave vaisselle, réfrigérateur ) et cellier attenant .
- salle d'eau
_ WC séparé
_ Garage et stationnement extérieur
_ Jardin privatif avec clôtures et engazonnement
Construction traditionnelle aux dernières normes en vigueur , toiture ardoise , menuiseries pvc RAL 7016 et baies vitrées aluminium RAL 7016
chauffage et climatisation par pompe à chaleur MULTI SPLIT et production d'eau chaude par ballon thermodynamique .
Points forts :
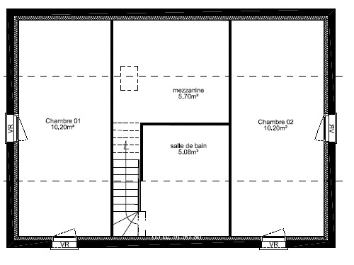
- comble aménageable
- Personnalisation des aménagements intérieurs et choix des finitions
- Possibilité de réservation par le client de certains postes (peinture ,revêtement sol des chambres ,cuisine, placard )
- Conception respectant la RE2020 pour des économies d'énergie et un confort optimal
- Garantie décennale et assurance dommage ouvrage
- Frais de notaire réduits
- Livraison prévue : premier trimestre 2027
Localisation : Proche commerces, écoles, transports et axes routiers.
Contactez-nous dès aujourd'hui pour découvrir les plans et réserver votre future maison !
Les informations sur les risques auxquels ce bien est exposé sont disponibles sur le site Georisque : georisques. gouv. fr
Stephane Debien - EI - est Agent Commercial mandataire en immobilier, immatriculé au Registre Spécial des Agents Commerciaux du Tribunal de Commerce de Tarbes sous le n°908251135.
Siège social du mandant : effiCity, 48 avenue de Villiers - 75017 PARIS - Société par Actions Simplifiée, société au capital de 132 373,05 euros, immatriculée au RCS Paris 497 617 746 et titulaire de la Carte professionnelle CPI 7501 2015 000 002 025 - CCI Paris IDF - Caisse de Garantie : GALIAN Assurances 89 rue de la Boétie 75008 Paris
85 m²
3 647 €
375 m²
4
3
2
Oui
Oui
Consommations énergétiques
Logement économe
25
Logement énergivore (kWhEP/m2/an)
Émissions de gaz à effet de serre
Faible émission de GES
1
Forte émission de GES(kgeqCO2/m2/an)
Contact M. Stephane Debien
Contacter gratuitement à l'aide du formulaire ci-dessous.