33700 MERIGNAC - CAPEYRON QUARTIER RESIDENTIEL - 6 PIECES - 5 CHAMBRES - 144.0 M2 - MAISON AVEC TERRAIN - CALME ABSOLU - BEAU POTENTIEL D'AMENAGEMENT
effiCity, l'agence qui estime votre bien en ligne, vous propose cette charmante maison située dans un quartier résidentiel recherché de Capeyron à Mérignac.
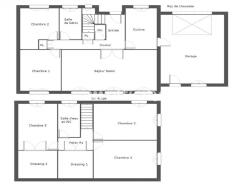
Située dans un environnement privilégié, cette maison familiale d'environ 144 m² offre de superbes volumes et un énorme potentiel. Implantée sur une parcelle d'environ 700 m², elle dispose de vastes pièces de vie, de grandes chambres équipées de dressings et d'un agencement idéal pour accueillir un projet de rénovation moderne et confortable.
Son emplacement rare ? au calme tout en restant proche des commodités, transports, écoles et commerces ? en fait une véritable opportunité.
Après travaux, cette maison révèlera toute sa valeur : un bien de qualité, spacieux, lumineux, parfaitement situé, dans l'un des quartiers les plus recherchés de Mérignac.
Pour plus d'informations ou pour organiser une visite, n'hésitez pas à me contacter.
Les informations sur les risques auxquels ce bien est exposé sont disponibles sur le site Georisque : georisques. gouv. fr
Grégory Olsak représentant de la SARL CBO DEVELOPPEMENT dont le siège social se situe 24 Rue Joliot Curie 33185 LE HAILLAN - titulaire de la carte professionnelle CPI CPI 3301 2023 000 000 131 - CCI de Bordeaux-Gironde le 26/09/2023 - immatriculée au RCS de Bordeaux sous le n°529 434 482 - immatriculée au Registre Spécial des Agents Commerciaux du Tribunal de Commerce de Bordeaux sous le n°529434482.
Siège social du mandant : effiCity, 48 avenue de Villiers - 75017 PARIS - Société par Actions Simplifiée, société au capital de 132 373,05 euros, immatriculée au RCS Paris 497 617 746 et titulaire de la Carte professionnelle CPI 7501 2015 000 002 025 - CCI Paris IDF - Caisse de Garantie : GALIAN Assurances 89 rue de la Boétie 75008 Paris
144 m²
3 333 €
701 m²
6
5
1
1
1977
Nord
Oui
Oui
Consommations énergétiques
Logement économe
169
Logement énergivore (kWhEP/m2/an)
Émissions de gaz à effet de serre
Faible émission de GES
36
Forte émission de GES(kgeqCO2/m2/an)
Contact M. Grégory Olsak
Contacter gratuitement à l'aide du formulaire ci-dessous.