Goodshowcase
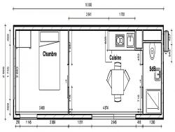
Vente maison 2 pièces

Vente maison 2 pièces
43 085 €

Contact M. Charles Epaillard

Contacter gratuitement à l'aide du formulaire ci-dessous.


Afficher le téléphone


Annonces similaires

Vente maison

Rodez 12000 - 0

46 363 €

...?????????-??? ???? ???? ?? ??é??????? ?? ???? ?é??????? ?'???????? ??? ???è??? ??????????? Avec...

Voir l'annonce