EFFICITY, l'agence qui estime votre bien en ligne vous propose FAI :
La Tiny House Liberté 30 m²
???????? ??????? ?? ??????
Une résidence secondaire tout confort
L'art de vivre en toute sérénité
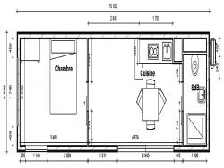
Dimensions : 3 × 10 m
Surface : 30 m²
Prix : à partir de 43?085 €
À ????? ??'?? ?????? é???????? ?'?????? ???è??? ???? ????? ??????é ?? ???????, ?? ?? ?² à ??? ?², ???? ??? ???? ??????? ????? ?? ??? € ?? ??? ??? €, ???? ?? ?'??????? à ???? ??? ??????? ?? ???????.
?????????-??? ???? ???? ?? ??é??????? ?? ???? ?é??????? ?'???????? ??? ???è??? ???????????
Agencé de plain-pied, le Liberté 30 est un véritable cocon spacieux, parfait pour une résidence secondaire, l'agrandissement d'une maison ou un logement adapté aux seniors.
?????? ????? :
?Volumes généreux et confort de plain-pied
?Adapté aux seniors et aux familles
?Confort toute l'année grâce à son isolation performante
?Élégance et fonctionnalité réunies
Offrez-vous une extension moderne, confortable et clé en main sans les contraintes d'un chantier. Nos studios de jardin habitables allient design élégant, matériaux durables et isolation performante RE2020 pour un confort optimal toute l'année.
Installation express : livré et posé en une journée, sans gros travaux.
??? % ??????????????? :
?Bureau de télétravail
?Chambre d'amis ou logement indépendant
?Salle de sport, atelier ou espace loisirs
?Studio de location saisonnière (type Airbnb)
Une solution moderne, écologique et évolutive, aussi confortable que votre intérieur, pour agrandir votre maison en toute simplicité.
Les informations sur les risques auxquels ce bien est exposé sont disponibles sur le site Georisque : georisques. gouv. fr
Charles Epaillard - EI - est Agent Commercial mandataire en immobilier, immatriculé au Registre Spécial des Agents Commerciaux du Tribunal de Commerce de Saintes sous le n°519247308.
Siège social du mandant : effiCity, 48 avenue de Villiers - 75017 PARIS - Société par Actions Simplifiée, société au capital de 132 373,05 euros, immatriculée au RCS Paris 497 617 746 et titulaire de la Carte professionnelle CPI 7501 2015 000 002 025 - CCI Paris IDF - Caisse de Garantie : GALIAN Assurances 89 rue de la Boétie 75008 Paris
30 m²
1 436 €
2
1
1
Oui
Oui
Consommations énergétiques
Logement économe
150
Logement énergivore (kWhEP/m2/an)
Émissions de gaz à effet de serre
Faible émission de GES
20
Forte émission de GES(kgeqCO2/m2/an)
Contact M. Charles Epaillard
Contacter gratuitement à l'aide du formulaire ci-dessous.