EFFICITY, l'agence qui estime votre bien en ligne vous propose FAI :
La Tiny House Liberté 15 m²
???????? ??????? ?? ??????
Pour un bureau, un atelier ou une chambre indépendante
L'élégance et le confort sur mesure
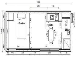
Dimensions : 3 × 5 m
Surface : 15 m²
Prix : à partir de 28?187 €
À ????? ??'?? ?????? é???????? ?'?????? ???è??? ???? ????? ??????é ?? ???????, ?? ?? ?² à ??? ?², ???? ??? ???? ??????? ????? ?? ??? € ?? ??? ??? €, ???? ?? ?'??????? à ???? ??? ??????? ?? ???????.
?????????-??? ???? ???? ?? ??é??????? ?? ???? ?é??????? ?'???????? ??? ???è??? ???????????
Le Lodge Liberté 15 est un espace compact et raffiné conçu pour répondre à tous vos besoins :
bureau de télétravail inspirant, atelier créatif ou chambre indépendante pour accueillir vos proches.
Grâce à ses proportions étudiées, il trouve facilement sa place, même dans les extérieurs les plus exigus.
?????? ????? :
?Surface optimisée et fonctionnelle
?Isolation performante, confort toute l'année
?Design élégant et discret
?Parfait pour espace de travail ou chambre d'amis
Offrez-vous une extension moderne, confortable et clé en main sans les contraintes d'un chantier. Nos studios de jardin habitables allient design élégant, matériaux durables et isolation performante RE2020 pour un confort optimal toute l'année.
Installation express : livré et posé en une journée, sans gros travaux.
??? % ??????????????? :
?Bureau de télétravail
?Chambre d'amis ou logement indépendant
?Salle de sport, atelier ou espace loisirs
?Studio de location saisonnière (type Airbnb)
Une solution moderne, écologique et évolutive, aussi confortable que votre intérieur, pour agrandir votre maison en toute simplicité.
Les informations sur les risques auxquels ce bien est exposé sont disponibles sur le site Georisque : georisques. gouv. fr
Charles Epaillard - EI - est Agent Commercial mandataire en immobilier, immatriculé au Registre Spécial des Agents Commerciaux du Tribunal de Commerce de Saintes sous le n°519247308.
Siège social du mandant : effiCity, 48 avenue de Villiers - 75017 PARIS - Société par Actions Simplifiée, société au capital de 132 373,05 euros, immatriculée au RCS Paris 497 617 746 et titulaire de la Carte professionnelle CPI 7501 2015 000 002 025 - CCI Paris IDF - Caisse de Garantie : GALIAN Assurances 89 rue de la Boétie 75008 Paris
15 m²
1 879 €
1
1
Oui
Oui
Consommations énergétiques
Logement économe
150
Logement énergivore (kWhEP/m2/an)
Émissions de gaz à effet de serre
Faible émission de GES
20
Forte émission de GES(kgeqCO2/m2/an)
Contact M. Charles Epaillard
Contacter gratuitement à l'aide du formulaire ci-dessous.