82330 VAREN ? MAISON ANCIENNE A RENOVER DE 128 M² AVEC BEAU POTENTIEL? TERRAIN 2 356 M² - 1 GARAGE - VISITE VIRTUELLE SUR DEMANDE.
efficity l'agence immobilière qui estime votre bien en ligne vous propose en exclusivité cette maison pleine de charme, construite en 1867, située à Varen, dans un environnement calme et verdoyant.
Édifiée sur un terrain généreux de 2 356 m², cette bâtisse d'environ 128 m² habitables se développe sur deux niveaux et offre de belles possibilités d'aménagement.
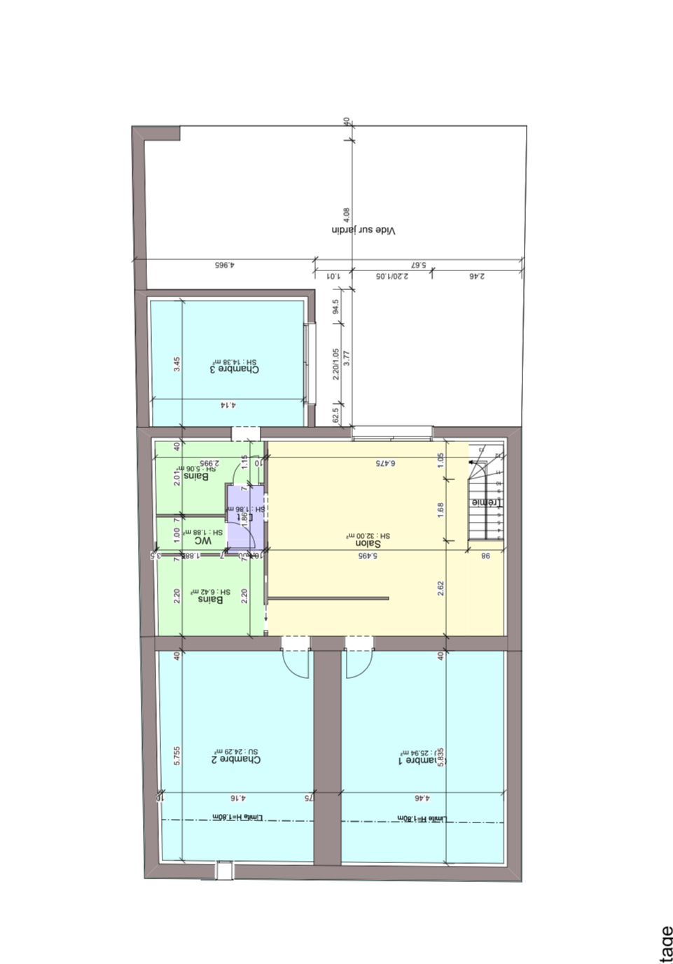
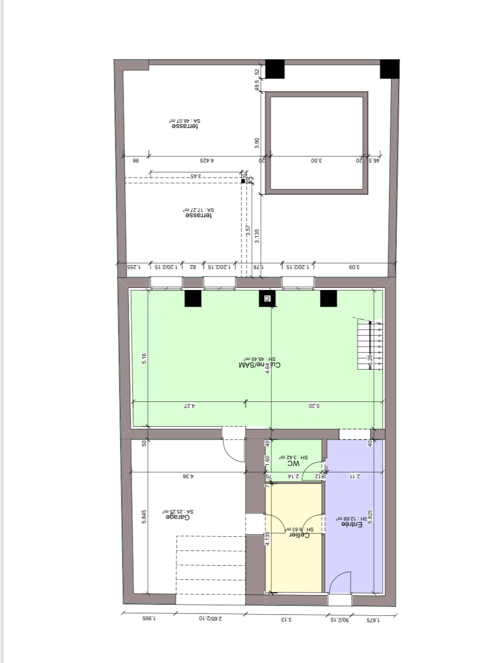
Au rez-de-chaussée, vous trouverez :
Une entrée, un dressing, une cuisine indépendante, un séjour, une grande chambre de plus de 17 m², une salle d'eau, un WC séparé ainsi qu'une buanderie.
À l'étage, l'espace nuit propose deux vastes chambres, l'une de presque 18 m² et l'autre proche de 17 m², ainsi qu'un bureau de près de 8 m², qui peut tout à fait être transformé en chambre d'enfant ou d'ami.
À l'extérieur, vous profiterez d'un garage de 25 m², d'un hangar complémentaire, et d'un grand jardin offrant de multiples possibilités d'aménagements.
La maison nécessite des travaux pour révéler tout son potentiel et être mise au goût du jour. C'est une opportunité idéale pour un projet de rénovation dans un cadre paisible, avec une belle surface habitable et un terrain généreux.
Les + :
Cachet de l'ancien
Grand terrain
Dépendances utiles (garage + hangar)
Beaux volumes
Environnement calme
Vous recherchez un bien à rénover avec du charme, du caractère, et un fort potentiel d'évolution ? Cette maison est faite pour vous.
Contactez dès maintenant votre conseiller efficity pour plus d'informations ou organiser une visite.
VISITE VIRTUELLE SUR DEMANDE
Les informations sur les risques auxquels ce bien est exposé sont disponibles sur le site Georisque : georisques. gouv. fr
Ludovic Mazars - EI - est Agent Commercial mandataire en immobilier, immatriculé au Registre Spécial des Agents Commerciaux du Tribunal de Commerce de Montauban sous le n°913838488.
Siège social du mandant : effiCity, 48 avenue de Villiers - 75017 PARIS - Société par Actions Simplifiée, société au capital de 132 373,05 euros, immatriculée au RCS Paris 497 617 746 et titulaire de la Carte professionnelle CPI 7501 2015 000 002 025 - CCI Paris IDF - Caisse de Garantie : GALIAN Assurances 89 rue de la Boétie 75008 Paris
128 m²
570 €
2356 m²
5
3
1
1
1867
Oui
Oui
Consommations énergétiques
Logement économe
505
Logement énergivore (kWhEP/m2/an)
Émissions de gaz à effet de serre
Faible émission de GES
63
Forte émission de GES(kgeqCO2/m2/an)
Contact M. Ludovic Mazars
Contacter gratuitement à l'aide du formulaire ci-dessous.