85100 - LES SABLES D'OLONNE - NOUVEAUTE - A VISITER AU PLUS VITE - QUARTIER LA CHAUME - 200 M DU PASSEUR ET DES QUAIS- MAISON DE RAPPORT- MAISON DIVISEE EN 4 STUDIOS DONT 2 A RENOVER - 68 M2 HABITABLE - CALME - IDEAL INVESTISSEUR - PAS DE CHARGES DE COPROPRIETE
ATOUTS = Quartier recherché de La Chaume et à 200 m du passeur et des quais, pas de charges de copropriété, très bon investissement, cave commune, 4 studios dont 1 avec une cour privative de 3, 5 m² environ.
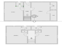
Une cave commune complète ce bien.
EffiCity, l'agence leader de l'estimation en ligne, vous propose de venir découvrir cette maison de rapport composée de quatre studios dont 2 à rénover. Loyers estimés à 2000 euros environ par mois.
Surfaces des 4 studios : 16, 05 m²; 17, 5 m²; 15 m² et 19 m².
Fibre optique installée.
Compteurs eau et électricité individuels pour chaque studio.
A visiter au plus vite.
Pour les visites et les renseignements contactez : Charles-Eric Girard au 06.86.70.34.35 ou par mail : cegirard@efficity.com
Les informations sur les risques auxquels ce bien est exposé sont disponibles sur le site Georisque : georisques. gouv. fr
Charles-Eric Girard - EI - est Agent Commercial mandataire en immobilier, immatriculé au Registre Spécial des Agents Commerciaux du Tribunal de Commerce de Roche-sur-Yon sous le n°831970082.
Siège social du mandant : effiCity, 48 avenue de Villiers - 75017 PARIS - Société par Actions Simplifiée, société au capital de 132 373,05 euros, immatriculée au RCS Paris 497 617 746 et titulaire de la Carte professionnelle CPI 7501 2015 000 002 025 - CCI Paris IDF - Caisse de Garantie : GALIAN Assurances 89 rue de la Boétie 75008 Paris
68 m²
3 853 €
5
4
4
4
1900
Oui
Oui
Consommations énergétiques
Logement économe
449
Logement énergivore (kWhEP/m2/an)
Émissions de gaz à effet de serre
Faible émission de GES
14
Forte émission de GES(kgeqCO2/m2/an)
Contact M. Charles-Eric Girard
Contacter gratuitement à l'aide du formulaire ci-dessous.