POMPAS ? 263m2 ? 8 PIECES ? HABITATION - 3 CHAMBRES ? GRAND GARAGE - RENOVATION - POTENTIEL RARE
Antoine MIQUEL & Efficity vous présentent une maison pas comme les autres, située au calme, à Pompas, avec un potentiel d'aménagement exceptionnel, avec des divisions, un projet professionnel (professions libérales, bureaux etc)? tout est possible.
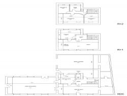
Habitation- salle de réception -salle de réunion - des espaces à aménager
Un grand salon-séjour lumineux
Une cuisine équipée en chêne massif
Au 2? étage : 3 chambres, grande salle d'eau, WC
Et ensuite? commence le véritable potentiel.
Un RDC à valoriser selon vos projets :
Un T2 réalisable rapidement, avec très peu de travaux
Ou un vaste espace de 77 m² + une pièce de 20 m² transformable en 2 appartements indépendants (T2 + T3 avec mezzanine)
Idéal aussi pour atelier d'artiste, bureaux, professions libérales (médicales et paramédicales), restauration
Et ce n'est pas tout :
Un 4? espace indépendant à l'arrière qui est actuellement un grand garage mais qui pourrait devenir un T3 supplémentaire voire 2 T2
De quoi créer un mini-ensemble immobilier? ou un véritable projet de vie, projet professionnel...
Pourquoi ce bien intéresse autant ?
Parce qu'il permet :
de revendre au fur et à mesure pour auto-financer votre résidence principale,
de créer plusieurs logements selon votre budget étape par étape,
ou de combiner vie perso + activité pro dans un même espace.
Un bien destiné aux investisseurs visionnaires, aux marchands de biens, et aux familles audacieuses qui pensent long terme.
Atouts rares :
5 à 6 places de stationnement intérieur + 3 extérieures
Pompe à chaleur récente, idéale pour une future distribution multi-logements
Emplacement central, calme, à proximité de toutes les commodités
Certaines possibilités sont difficiles à imaginer sans les voir?
et les chiffres deviennent très intéressants quand on connaît le détail.
Pour comprendre le vrai potentiel et les scénarios possibles, contactez-moi. Je vous explique ce qui fait vraiment la valeur de ce bien.
Les informations sur les risques auxquels ce bien est exposé sont disponibles sur le site Georisque : georisques. gouv. fr
Antoine Miquel - EI - est Agent Commercial mandataire en immobilier, immatriculé au Registre Spécial des Agents Commerciaux du Tribunal de Commerce de Saint-Nazaire sous le n°508558376.
Siège social du mandant : effiCity, 48 avenue de Villiers - 75017 PARIS - Société par Actions Simplifiée, société au capital de 132 373,05 euros, immatriculée au RCS Paris 497 617 746 et titulaire de la Carte professionnelle CPI 7501 2015 000 002 025 - CCI Paris IDF - Caisse de Garantie : GALIAN Assurances 89 rue de la Boétie 75008 Paris
263 m²
1 787 €
700 m²
8
3
1
2
1900
Sud
Oui
Oui
Consommations énergétiques
Logement économe
175
Logement énergivore (kWhEP/m2/an)
Émissions de gaz à effet de serre
Faible émission de GES
5
Forte émission de GES(kgeqCO2/m2/an)
Contact M. Antoine Miquel
Contacter gratuitement à l'aide du formulaire ci-dessous.