69490 ANCY ? MAISON FAMILIALE ? 5 PIÈCES ? 4 CHAMBRES ? 124 M² ? JARDIN ? PISCINE HORS SOL ? SOUS SOL ? VUE EXCEPTIONNELLE--DISPONIBLE MAI 2026
Efficity, l'agence qui estime votre bien en ligne, et Séverine Magaud vous présentent cette maison lumineuse et fonctionnelle de 124 m², construite en 2007, située sur les hauteurs de Ancy, dans un environnement calme et privilégié offrant une vue panoramique.
Idéalement pensée pour une vie de famille confortable, cette maison allie volumes, prestations et cadre de vie agréable.
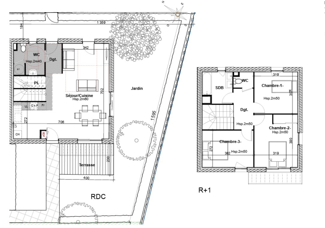
Agencement 1er étage :
- Un séjour LUMINEUX ouvrant sur le jardin.
- Une CUISINE OUVERTE fonctionnelle avec cuisson au gaz.
- Trois chambres.
- Une salle de bain.
- Un WC.
Rez de chaussée :
- Un hall d'entrée
- une SUITE PARENTALE avec salle d'eau et WC Séparé
- Un GARAGE et une CAVE pour une surface totale de 66 m², offrant de nombreuses possibilités de rangement et de stationnement.
Extérieurs :
- Un JARDIN agréable, idéal pour les moments de détente en famille.
- Une PISCINE hors sol pour profiter pleinement des beaux jours.
- Un environnement calme avec vue dégagée.
Équipements techniques :
- Chauffage individuel électrique par radiateurs.
- Ballon d'eau chaude de 300 litres.
- Aspiration centralisée.
- Cuve de récupération d'eau de pluie.
Maison entretenue et habitable immédiatement.
L'environnement :
- Secteur résidentiel recherché de Ancy.
- Proximité des commodités et des écoles.
- Accès A89 sortie L'Arbresle 22 min
- Gare SNCF et Tram train L'Arbresle 20 min.
Cette maison offre un cadre de vie privilégié, alliant confort moderne, fonctionnalité et vue exceptionnelle. Une opportunité à découvrir rapidement !
Pour plus d'informations ou pour organiser une visite, contactez :
Séverine Magaud ? 06 15 34 44 40 ? smagaud@efficity.com
Les informations sur les risques auxquels ce bien est exposé sont disponibles sur le site Georisque : georisques. gouv. fr
Severine Magaud - EI - est Agent Commercial mandataire en immobilier, immatriculé au Registre Spécial des Agents Commerciaux du Tribunal de Commerce de Villefranche-sur-Saône sous le n°919009118.
Siège social du mandant : effiCity, 48 avenue de Villiers - 75017 PARIS - Société par Actions Simplifiée, société au capital de 132 373,05 euros, immatriculée au RCS Paris 497 617 746 et titulaire de la Carte professionnelle CPI 7501 2015 000 002 025 - CCI Paris IDF - Caisse de Garantie : GALIAN Assurances 89 rue de la Boétie 75008 Paris
124 m²
3 024 €
46 m²
1391 m²
5
4
1
1
2
2007
Sud
Oui
Oui
Consommations énergétiques
Logement économe
249
Logement énergivore (kWhEP/m2/an)
Émissions de gaz à effet de serre
Faible émission de GES
8
Forte émission de GES(kgeqCO2/m2/an)
Contact Mme Severine Magaud
Contacter gratuitement à l'aide du formulaire ci-dessous.