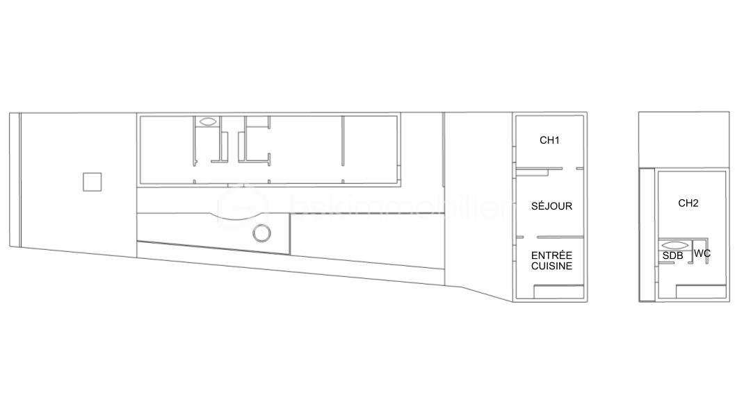
Maison lumineuse 3piece de 65 m2 deux chambres, salon et cuisine indépendante.
Surface totale de 165m2
Chauffage gaz
Pas de travaux
Immédiatement disponible pour visite
Cette annonce référence 307087 vous est présentée par votre agent commercial BSK Immobilier RAKESH ELANGO (EI) immatriculé au RSAC de VERSAILLES (78000) sous le numéro 95090620600012.
Prix du bien : 260 000,00 €
Les honoraires d'agence sont à la charge du vendeur.
A propos des performances énergétiques :
Date de réalisation du diagnostic énergétique : 16/12/2024
Score DPE : 593 kWhEP/m²/an
Score GES : 132 kgepCO2/m²/an
Montant estimé des dépenses annuelles d'énergie pour un usage standard : entre 3290.00 € et 4490.00 € par an. Prix moyens des énergies indexés sur l'année 2023 (abonnements compris).
Les informations sur les risques auxquels ce bien est exposé sont disponibles sur le site Géorisques : www.georisques.gouv.fr
65 m²
4 000 €
3
2
1
1
1970
Oui
Consommations énergétiques
Logement économe
593
Logement énergivore (kWhEP/m2/an)
Émissions de gaz à effet de serre
Faible émission de GES
132
Forte émission de GES(kgeqCO2/m2/an)
Contact RAKESH ELANGO
Contacter gratuitement à l'aide du formulaire ci-dessous.