Maison 4/5 pièces à proximité immédiate de la plage du Kérou
Clohars-Carnoët 29360
0
Honoraires à la charge de l'acquéreur (Prix hors honoraires : 465000 euros).
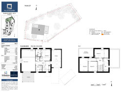
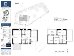
Maison située à 2 pas de la plage du Kerou, dans un environnement calme, avec un accès privatif à la plage. La maison se distingue par sa luminosité et son séjour spacieux ouvrant sur une terrasse aménagée. Elle se compose d'une cuisine récente, entièrement équipée, et ouverte sur un salon-séjour avec poêle à bois, d'une grande chambre/dressing, d'une salle de douche et d'un wc. A l'étage, un spacieux palier/bureau dessert 2 belles chambres, une salle de douche, un wc et un espace de rangement. Le sous-sol total offre un espace supplémentaire polyvalent. À l'extérieur, un jardin/terrasse clos et aménagé disposant d'un abri pour ranger kayaks, surfs ou canoës, ainsi que d'un parking pouvant accueillir à la fois voitures et semi-rigide. CREFF IMMOBILIER15 Rue QUILIEN29360 CLOHARS CARNOET0298066346
106 m²
4 245 €
420 m²
5
3
2
2
4.50 %
1962
Individuel radiateur
Américaine équipée
1
1
1
Consommations énergétiques
Logement économe
186
Logement énergivore (kWhEP/m2/an)
Émissions de gaz à effet de serre
Faible émission de GES
5
Forte émission de GES(kgeqCO2/m2/an)
Contact CREFF immobilier
Contacter gratuitement à l'aide du formulaire ci-dessous.