La part des honoraires pour la réalisation de létat des lieux de ce bien est de 295.29 euros.
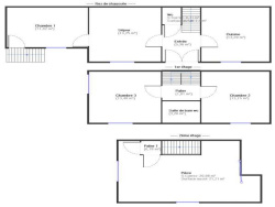
24 rue Belle Place, maison de 96.61m2 à louer Il est composé au rez de chaussée d'une entrée, une cuisine équipée de 13m2, un salon de 13m2 et une salle à manger ou une chambre de 11.4m2 Au 1er étage: 2 chambres de 13m2 chacune et salle de bains wc (sanibroyeur) Au dernier étage: une grande chambre de 20m2 avec salle d'eau wc Double vitrage PVC - Chauffage individuel électrique Garage avec dépendance - Caves - Terrain de 493m2 . Gare RER D à 10min à pied Loyer: 1 950EUR Dépôt de garantie: 1 950EUR
98.43 m²
13 m²
493 m²
5
4
2
3
1279.5900000000001 %
1900
1
1
Consommations énergétiques
Logement économe
365
Logement énergivore (kWhEP/m2/an)
Émissions de gaz à effet de serre
Faible émission de GES
14
Forte émission de GES(kgeqCO2/m2/an)
Contact AGENCE VERNAY
Contacter gratuitement à l'aide du formulaire ci-dessous.