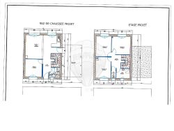
<p>IDEALEMENT SITUEE à 10 minutes des plages, à cheval entre Saint Josse et Saint Aubin.</p><p>Maison non achevée (hors d'eau, hors d'air), initialement composée de 4 chambres avec possibilité de créer un carport. Façade avant exposée Est, façade arrière exposée Ouest.</p><p>L'intégralité du second oeuvre reste à faire. Les réseaux Eau, Edf et Télécom sont aux bords de la propriété il suffit de raccorder. Bien vendu avec garantie decennale. Assainissement : Micro station à prévoir !</p><p>La parcelle fait 1410 m².</p><p>Pour plus d'informations, veuillez contacter Adrien DUCROCQ -Telephone : O6.3O.25.37.39 -Email : adrienducrocqimmobilier@orange.fr. Agent commercial immatriculé au RSAC de Boulogne-sur-Mer sous le numéro n° 883 514 234</p><p> </p> Prix 190 000 € honoraires exclus.
Honoraires de 13.400 € TTC à la charge de l'acquéreur.
78 m²
2 608 €
1410 m²
5
4
1
2
2022
Oui
Contact AGENCE DE LA POSTE
Contacter gratuitement à l'aide du formulaire ci-dessous.