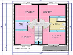
<p> Romuald LUNARDON, de RE/MAX IMMO GROUP, vous propose cette maison individuelle située à Errouville. </p><p>Errouville village calme, à 30km de Thionville et 15km d'Esch-sur-Alzette, maison individuelle, qui dispose d'un magnifique jardin plat de 900m² avec une belle vue sur la nature. </p><p>Les plans sont modulables et adaptables à vos critères si vous avez besoin. </p><p>Le projet présenté se compose en rez-de-chaussée d'un vaste salon séjour avec cuisine ouverte, un WC séparé, un cellier, une entrée et un garage. Vous disposerez à l'étage de quatre chambres, d'une salle d'eau avec WC. </p><p>Vous bénéficierez de toutes les garanties nécessaires et des nouvelles normes en vigueur : </p><p>-Les garanties contractuelles. </p><p>-Le Respect des prix et des délais de construction. </p><p>-Garantie biennale et décennale. </p><p>-Respect de la réglementation thermique 2020. </p><p>Le prix affiché correspond au projet présenté, livré en prêt à décorer. </p><p>Contactez-moi au 06 73 56 90 38 pour plus de renseignements ou réserver le lot ! </p><p>La présente annonce immobilière a été rédigée sous la responsabilité de LUNARDON Romuald, agent commercial. (N° SIRET:91157581900014)
</p>
Honoraires à la charge du vendeur.
Les informations sur les risques auxquels ce bien est exposé sont disponibles sur le site Géorisques : www.georisques.gouv.fr .
110 m²
3 436 €
900 m²
5
4
1
1
2
2024
Oui
Émissions de gaz à effet de serre
Faible émission de GES
45
Forte émission de GES(kgeqCO2/m2/an)
Contact LUNARDON Romuald
Contacter gratuitement à l'aide du formulaire ci-dessous.