Honoraires à la charge de l'acquéreur (Prix hors honoraires : 200000 euros).
Lemaire Briffault Immobilier vous présente, en exclusivité, cette maison parfaitement agencée sur trois niveaux.
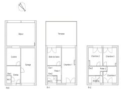
Le rez-de-chaussée s'ouvre sur un hall d'entrée desservant un grand salon-séjour lumineux, une cuisine équipée ouverte, un garage et un WC indépendant.
Au premier étage, le palier dessert une chambre et une salle de bains. Le second niveau se compose, quant à lui, de trois chambres supplémentaires et d'un dressing.
Côté extérieurs, vous profitez de deux places de stationnement à l'avant et d'un jardin de 80m² exposé Sud-Ouest avec terrasse et cabanon à l'arrière.
Ce bien est actuellement loué en colocation mais sera disponible pour votre projet dès l'été prochain. Le départ du dernier locataire est officiellement fixé au 18 juin 2026 suite à la délivrance d'un congé pour vente
Produit rare sur le secteur ! Ne tardez pas à venir découvrir tout le potentiel de cette maison. Contactez-nous dès aujourd'hui pour organiser une visite.
Honoraires inclus de 7% TTC à la charge de l'acquéreur. Prix hors honoraires 200 000 . Logement à consommation énergétique excessive : Classe énergie F, Classe climat F Montant estimé des dépenses annuelles d'énergie pour un usage standard : entre 3288.00 et 4450.00 sur les années 2021, 2022 et 2023 (abonnements compris). Les informations sur les risques auxquels ce bien est exposé sont disponibles sur le site Géorisques : georisques.gouv.fr.
110 m²
1 945 €
181 m²
5
4
1
2 (séparés)
7 %
02/02/2026
1964
Sud
Ouest
2
1
1
Consommations énergétiques
Logement économe
418
Logement énergivore (kWhEP/m2/an)
Émissions de gaz à effet de serre
Faible émission de GES
92
Forte émission de GES(kgeqCO2/m2/an)
Contact Etude Richard
Contacter gratuitement à l'aide du formulaire ci-dessous.