Les charges de location sont prévisionnelles mensuelles avec régularisation annuelle.
La part des honoraires pour la réalisation de létat des lieux de ce bien est de 295.29 euros.
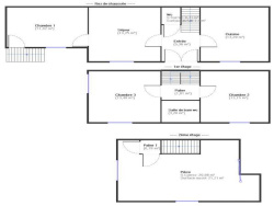
PAVILLON A LOUER POUR BUREAUX Il est composé au rez de chaussée d'une entrée, 3 pièces et une cuisine. Au 1er étage: 2 pièces et salle de bains wc (sanibroyeur) Au dernier étage: une grande pièce de 20m2 Garage avec dépendance - Terrain de 493m2 . Gare RER D à 10min à pied ou bus en face de la maison Loyer: 2 140EUR Honoraires location: 3 850EUR HT Taxe foncière à la charge du locataire: 1631EUR
98.43 m²
13 m²
493 m²
5
4
2
3
3850 %
Oui
1900
Consommations énergétiques
Logement économe
365
Logement énergivore (kWhEP/m2/an)
Émissions de gaz à effet de serre
Faible émission de GES
14
Forte émission de GES(kgeqCO2/m2/an)
Contact AGENCE VERNAY
Contacter gratuitement à l'aide du formulaire ci-dessous.