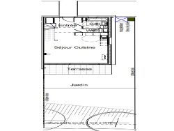
4 PIÈCES - TERRASSE - Dans le centre de Décines, à 500 mètres du T3 arrêt Décines Centre, Les Experts du Neuf vous propose à la vente cette maison de 98,67m² avec une Terrasse de 12,37m² et un jardin de 112,86m² dans une prochaine résidence contemporaine aux très belles prestations intérieures. La maison est composée d'une entrée, un séjour ouvert sur une belle terrasse, une cuisine américaine, une salle de bains et d'un wc. A l'étage, trois chambres, une salle d'eau ainsi qu'un WC séparé. Bâtiment basse consommation, faible charges. Visuel non-contractuels Contactez Grégory Cominh pour plus d'informations. Copropriété de 7 lots - dont 7 lots habitation. (Pas de procédure en cours). Charges annuelles : 1500 euros.