Maison neuve à construire MAGNOLIA_2CH_61_V1
TERRAIN Viabilisé, tout à l'égout en plein centre de MEDIS, proche de tout commodité !
Les bois des Reigners
Au c?ur du Pays Royannais, dans la frange continentale de la Côte de Beauté et sur les marches de la presqu'île d'Arvert, Médis est une commune résidentielle de la couronne périurbaine de Royan.
Au c?ur du village de Médis, à 10 minutes de la plage et à 15 minutes de Royan, dans un environnement calme et pavillonnaire, ce lotissement situé route de la Gare, se compose de 24 parcelles viabilisées.
à partir de
87 000€
24 terrains à bâtir
de 312 à 685 m2
Libres de constructeur, Aménagés, Viabilisés
1T - 2025
Voir les disponibilités
Prix affichés en TVA 20%
TERRAIN Viabilisé, tout à l'égout en plein centre de MEDIS, proche de toutes commodités !
Les bois des Reigners
Au c?ur du Pays Royannais, dans la frange continentale de la Côte de Beauté et sur les marches de la presqu'île d'Arvert, Médis est une commune résidentielle de la couronne périurbaine de Royan.
Au c?ur du village de Médis, à 10 minutes de la plage et à 15 minutes de Royan, dans un environnement calme et pavillonnaire, ce lotissement situé route de la Gare, se compose de 24 parcelles viabilisées.
à partir de
87 000€
24 terrains à bâtir
de 312 à 685 m2
Libres de constructeur, Aménagés, Viabilisés
1T - 2025
Voir les disponibilités
Prix affichés en TVA 20%
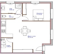
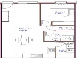
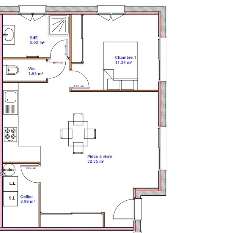
BELLE MAISON DE 2 CHAMBRES
Cette maison de 2 chambres offre une distribution optimisée des pièces. Ce plan compact et fonctionnel a été pensé pour faciliter l'accès à la propriété avec un budget maîtrisé.
? Lumineuse avec cuisine ouverte donnant sur son jardin.
? Beaux volumes et distribution optimisée des pièces pour votre confort de vie.
? Aménagements et équipements de haut niveau : volets roulants motorisés et connectés, système de chauffage par pompe à chaleur, domotique, carrelage grand format.
ET SI VOUS FAISIEZ CONSTRUIRE AVEC MAISONS ALYSIA ?
Testez notre configurateur en ligne et chiffrez instantanément votre projet personnalisé, téléchargeable.
? Gratuit, rapide et sans engagement.
? + de 250 modèles de maisons personnalisables.
? Calculettes en ligne pour identifier votre budget et évaluer votre future mensualité.
Rendez-vous sur notre site maisons-alysia(.com) pour concrétiser votre rêve.
Contactez-nous au O5 86 3O 21 31 pour finaliser votre projet !
Coût du terrain inclus dans cette offre.
Hors peintures et faïence, revêtements de sol des chambres.
Hors assurance dommages-ouvrage, frais de notaire et frais d'adaptation du terrain éventuels.
Cette offre est proposée en collaboration avec notre partenaire foncier selon disponibilités.
Contact : au 05 86 30 21 31.