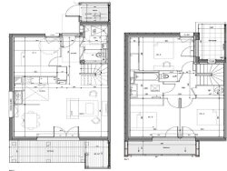
Découvrez cette magnifique maison de 108 m², nichée dans un cadre de vie exceptionnel. Composée d'une entrée avec placard, vous découvrirez une belle pièce de vie largement ouverte sur la terrasse et son jardin. Une suite parentale se trouve également au rez-de-chaussée. À l'étage, l'espace nuit se compose de trois chambres supplémentaires, une salle de bain et un second wc indépendant.
Deux places de parking privatives complètent la vente.
Située à proximité de toutes les commodités, cette maison est à 5 minutes à pied du bus. Plusieurs écoles, restaurants, parcs et médecins sont également facilement accessibles.
L'aménagement reste modifiable en fonction de vos besoin.
VOTRE MAISON FAMILIALE AVEC JARDIN ET PARKING
Honoraires à la charge du vendeur. Dans une copropriété de 41 lots. Aucune procédure n'est en cours. DPE en cours. Les informations sur les risques auxquels ce bien est exposé sont disponibles sur le site Géorisques : georisques.gouv.fr.