Bienvenue dans votre futur logement! Nous sommes ravis de vous présenter cette maison sur sol située proche des grands axes, des commerces et des écoles. Offrant une rénovation récente et moderne.
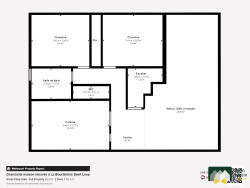
- Découvrez au rez de chaussée : Entrée sur une vaste espace de vie de 27 m² Une cuisine indépendante aménagée et équipée Un toilette Une salle d'eau Deux chambres
- Espace extérieur et annexes : Un jardin entièrement clos Un sous sol
- Côté confort : Rénovations récentes et prestations additionnelles : adoucisseur AEG, ballon récent Exposition Est - Ouest traversante
- L'emplacement :
Située proche des axes routiers principaux pour rejoindre LE MANS, PARIS, CHATEAUDUN
N'hésitez pas à contacter votre agent au Noeud Pap' pour obtenir plus d'informations et visiter cette maison
Honoraires à la charge du vendeur. Classe énergie C, Classe climat A Montant estimé des dépenses annuelles d'énergie pour un usage standard : entre 1070.00 et 1510.00 sur les années 2021, 2022 et 2023 (abonnements compris). Les informations sur les risques auxquels ce bien est exposé sont disponibles sur le site Géorisques : georisques.gouv.fr.
Votre conseiller Bien Serein immobilier : Morgan GOHIER Agent commercial (Entreprise individuelle) RSAC 910254119
Maison traditionnelle
75 m²
2 065 €
27 m²
1139 m²
4
2
1
1 (séparé)
1970
Est
Ouest
1
1
Consommations énergétiques
Logement économe
154
Logement énergivore (kWhEP/m2/an)
Émissions de gaz à effet de serre
Faible émission de GES
5
Forte émission de GES(kgeqCO2/m2/an)
Contact Morgan GOHIER
Contacter gratuitement à l'aide du formulaire ci-dessous.