<p style="text-align:left;"><strong>Très rare, projet de construction de maison neuve sur un terrain situé au Crève-Coeur, à quelques pas du Belvédère, offrant une vue panoramique, en bout d'impasse</strong>
REMAX vous popose ce projet unique dans un cadre d'exception : une maison moderne et personnalisable, située en bout d'impasse sur les hauteurs de Thionville. Profitez d'une vue panoramique dans le quartier très prisé du Crève-Coeur.
Ce terrain idéalement placé, offrant calme et intimité.
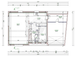
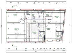
Plans modulables pour s'adapter à vos envies, modèle adapté au PLU et chiffré en partenariat avec un maître d'oeuvre.
Une opportunité à ne pas rater !</p><p><strong>Le prix affiché correspond au modèle et plans en photos. Sanitaires dessinés inclus.</strong></p><p><strong>Carrelage et faience inclus, système de chauffage au sol par pompe à chaleur, très belles prestations à découvrir.</strong></p><p>Vous bénéficierez de toutes les garanties nécessaires et des nouvelles normes en vigueur, il restera à la charge client les peintures intérieures et l'aménagement de la cuisine. </p><p style="text-align:start;"><strong>Frais de Notaires réduits ( +/- 29.000€) / Construction basse consomation</strong></p><p style="text-align:start;"><strong>Contactez moi au 07 78 05 66 94 pour plus de renseignement ou réserver ce projet!</strong></p><p style="text-align:start;"></p><p style="text-align:left;">La présente annonce immobilière a été rédigée sous la responsabilité de Vincent De Vreese, agent commercial (N° SIRET: 540 042 553 00011) </p>
Honoraires à la charge du vendeur.
Les informations sur les risques auxquels ce bien est exposé sont disponibles sur le site Géorisques : www.georisques.gouv.fr .
211 m²
4 052 €
687 m²
8
5
3
4
2025
Oui
Consommations énergétiques
Logement économe
25
Logement énergivore (kWhEP/m2/an)
Émissions de gaz à effet de serre
Faible émission de GES
5
Forte émission de GES(kgeqCO2/m2/an)
Contact Vincent De Vreese
Contacter gratuitement à l'aide du formulaire ci-dessous.