CHARME DE L'ANCIEN - POSSIBILITÉ DE DEUX LOGEMENTS
Sur la commune de Péron, belle maison de village rénovée de 172 m² habitables avec terrasse et jardin.
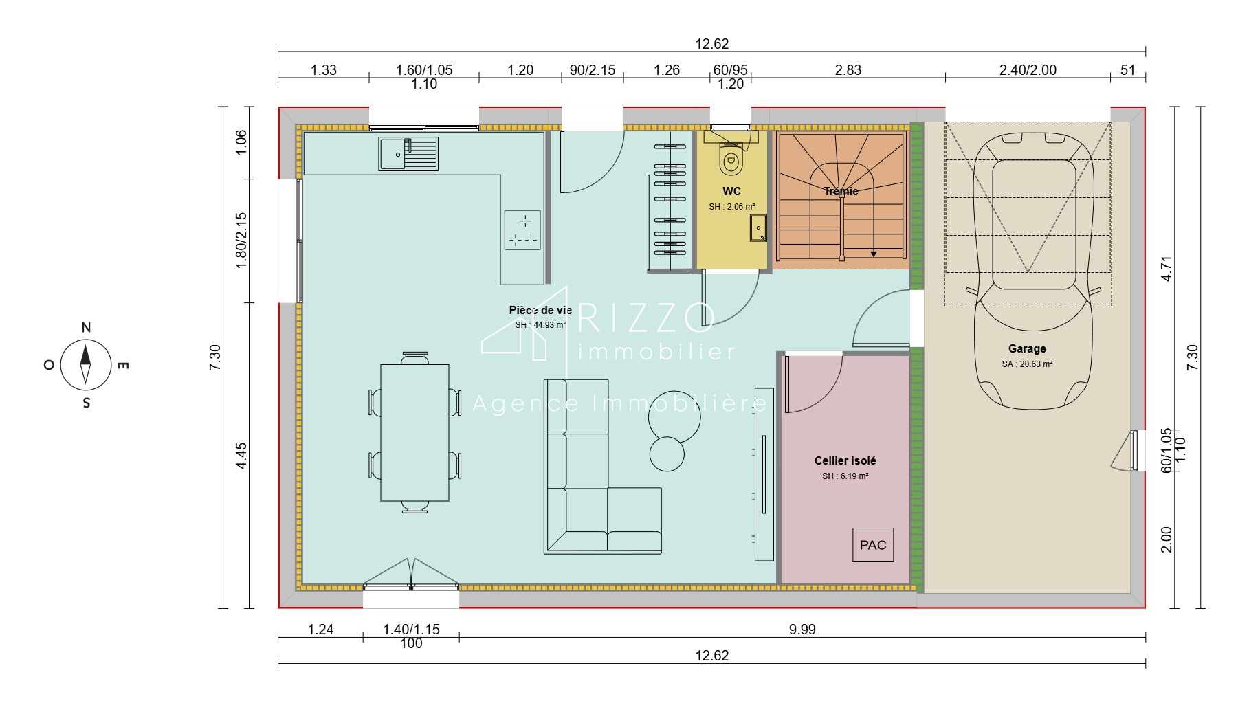
La maison se compose d'une entrée avec rangement, d'un bel espace de vie avec cuisine équipée, grande salle à manger et salon, une salle de bains neuve avec WC.
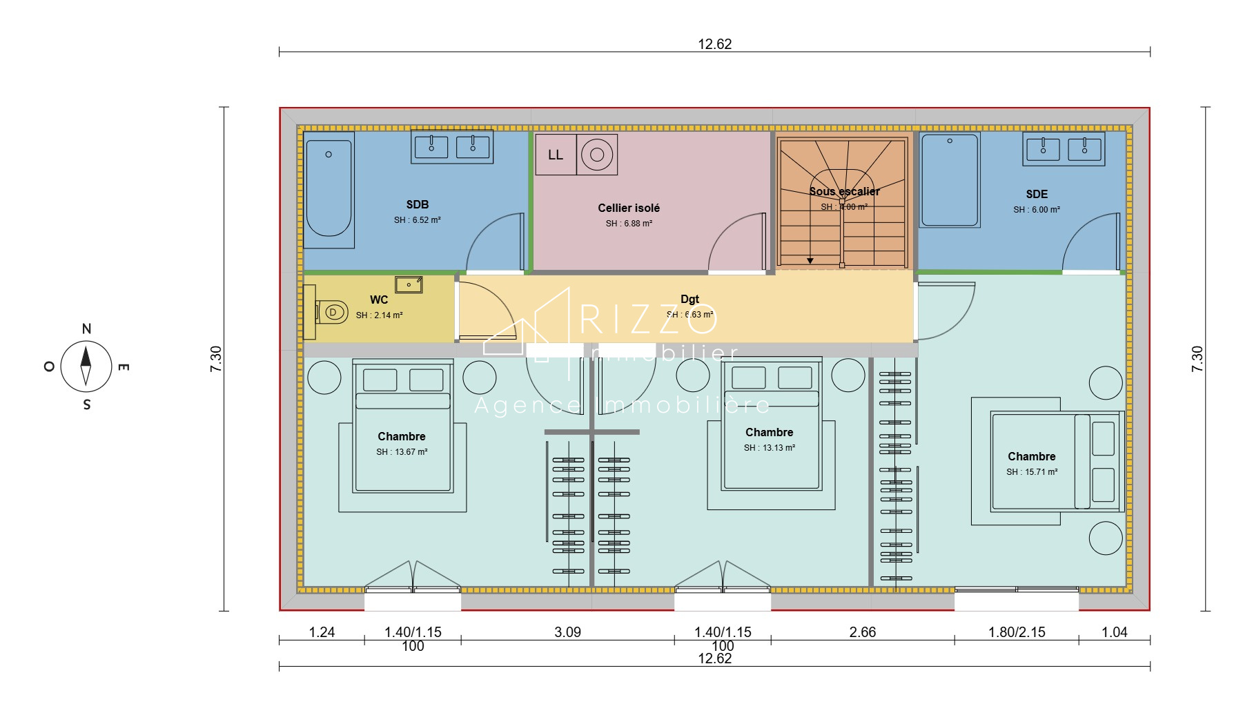
Au premier étage, 4 grandes chambres (entre 17 et 21 m²) dont une avec salle de douche, WC et dressing. Au deuxième étage, combles à finir d'aménager en appartement 2 chambres de 83 m² habitables (indépendance possible avec escalier extérieur).
En annexes, un garage fermé, sous-sol avec caves et rangements, une place de stationnement.
Chauffage individuel gaz. Proche collège, commerces et douane.
Contact : Didier DUGUÉ au 06 71 66 45 93
Honoraires à la charge du vendeur. Classe énergie E, Classe climat E Montant moyen estimé des dépenses annuelles d'énergie pour un usage standard, établi à partir des prix de l'énergie de l'année 2021 : entre 3110.00 et 4208.00 . Les informations sur les risques auxquels ce bien est exposé sont disponibles sur le site Géorisques : georisques.gouv.fr.
Maison ancienne
171.39 m²
3 472 €
35 m²
330 m²
5
4
1
2
1950
Sud
Est
Oui
2
1
Oui
Consommations énergétiques
Logement économe
292
Logement énergivore (kWhEP/m2/an)
Émissions de gaz à effet de serre
Faible émission de GES
54
Forte émission de GES(kgeqCO2/m2/an)
Contact Cabinet Landecy
Contacter gratuitement à l'aide du formulaire ci-dessous.