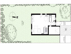
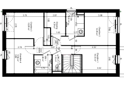
Situé à Genas, à seulement vingt minutes de Lyon, la résidence s'inscrit dans un cadre de vie rare et recherché. Cette belle Maison de type T5 de 120m² est composée en bas d'une buanderie, d'un Wc séparé et d'un séjour avec cuisine de 46m², le tout ouvert sur un beau terrain de plus de 335m². A l'étage, 4 chambres, une salle de bains, une salle d'eau, un dressing et un wc séparé. Un garage complète la maison Bâtiment basse consommation, faibles charges Visuel non contractuel Merci de contacter votre conseiller Grégory au O6.69.26.64.26 pour plus d'informations Copropriété de 18 lots - dont 18 lots habitation. (Pas de procédure en cours). Charges annuelles : 250 euros.