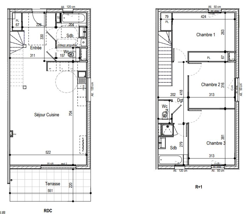
A Saint-Pierre-de-Chandieu, jevous propose à la vente cette maison Mitoyenne de 108,52m² avec Terrasse Couverte de 18,72m² et jardin, aux dernières normes comprenant : En bas, une entrée, un séjour avec cuisine ouverte donnant sur la terrasse et sur le jardin, une salle d'eau avec wc. A l'étage, quatre chambres, une salle de bains et un WC. Isolation phonique et thermique renforcés, faibles charges. Visuel non contractuel. Merci de contacter votre conseiller Grégory pour plus d'informations Copropriété de 18 lots - dont 18 lots habitation. (Pas de procédure en cours). Charges annuelles : 120 euros.