Maison neuve à construire FIGUIER_3CH_83_V2
BELLE MAISON DE 3 CHAMBRES
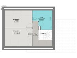
Cette maison de 3 chambres offre une superficie initiale de 83 m²
habitable avant agrandissement. Elle propose une pièce de vie de 23.66
m2 évolutive selon vos besoins et vos souhaits.
ET SI VOUS FAISIEZ CONSTRUIRE AVEC MAISONS ALYSIA ?
Testez notre configurateur en ligne et personnalisez votre projet
en - de 2 mn :
? Projet chiffré personnalisé téléchargeable.
? Gratuit, rapide et sans engagement.
? + de 130 modèles de maisons personnalisables.
Rendez-vous sur notre site maisons-alysia(.com) pour concrétiser
votre rêve.
Contactez nous au 02.55.59.660.86 pour finaliser votre projet !
Agence Alysia :
1 rue Henry Spriet -14120 MONDEVILLE
MELISSA LEVEQUE - Chargée de Projet
Contact : au 02 21 67 53 31.