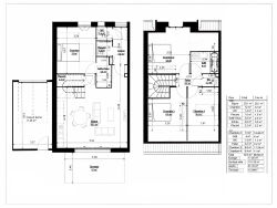
Maison neuve au calme dans un cadre privilégié, dans une ville prisée, proche des commodités, écoles et axes de transport, tout en bénéficiant d'un environnement calme et verdoyant. . Découvrez cette superbe maison neuve située dans un lotissement intimiste et recherché, offrant confort, modernité et tranquillité. 4 chambres spacieuses, dont une suite parentale avec salle d'eau et dressing. Beau séjour lumineux avec accès direct au jardin. Cuisine ouverte (possibilité d'aménagement selon vos envies). Garage attenant et espace de stationnement. Prestations de qualité, dernières normes énergétiques. Copropriété de 66 lots (Pas de procédure en cours). Charges annuelles : 500 euros.