Bienvenue dans votre futur chez-vous ! Nous sommes ravis de vous présenter cette ravissante maison de plain pied édifiée sur sous sol total. Offrant de beaux volumes, et édifiée sur un terrain de 446 m², cette maison vous offrira un cadre de vie paisible et fonctionnel.
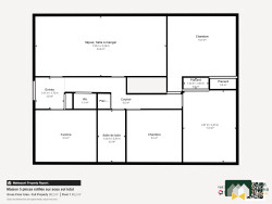
Découvrez l'intérieur : - Une entrée avec placard - Un séjour salon avec cheminée à insert - Une cuisine indépendante aménagée et équipée - Trois Chambres - Une salle de bain avec baignoire et douche - Un wc indépendant
Espace extérieur : - Un balcon sans aucun vis à vis - Un agréable jardin clos
Côté confort : - Double vitrage PVC et volets roulant électriques - Nombreux rangements et sous sol total
L'emplacement : Située dans un quartier bien desservi, à seulement 5 minutes à pied, vous trouverez un arrêt de bus et à 10 minutes à pied, plusieurs commodités : crèche, écoles et commerces. Le collège et la gare de Lucé se trouvent à 15 minutes à pied.
N'hésitez pas à contacter votre agent au Noeud Pap' pour obtenir plus d'informations et visiter cette maison !
Honoraires à la charge du vendeur. Classe énergie E, Classe climat E Montant estimé des dépenses annuelles d'énergie pour un usage standard : entre 2896.00 et 3918.00 sur les années 2021, 2022 et 2023 (abonnements compris). Les informations sur les risques auxquels ce bien est exposé sont disponibles sur le site Géorisques : georisques.gouv.fr.