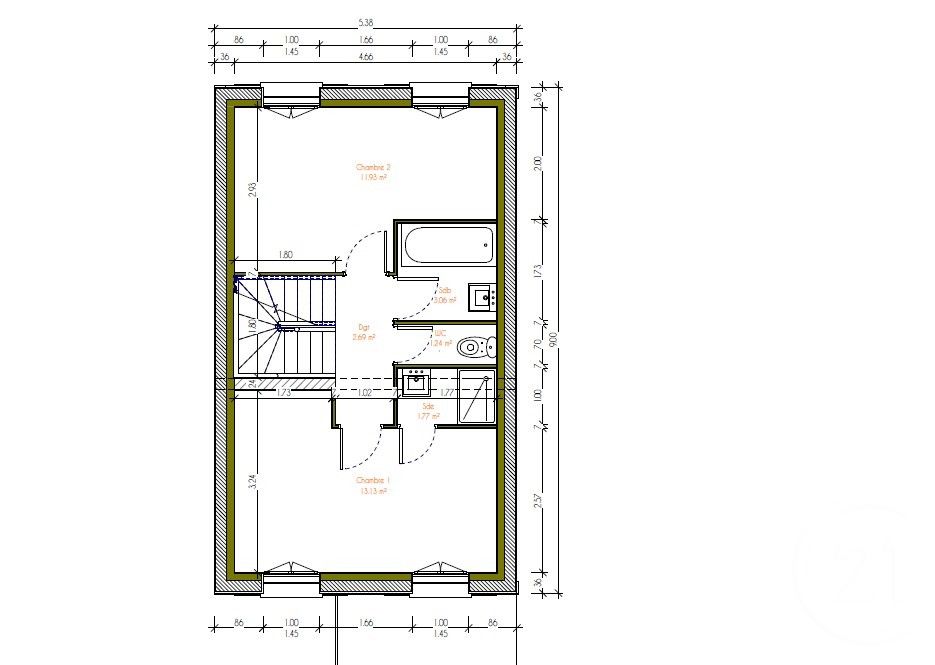
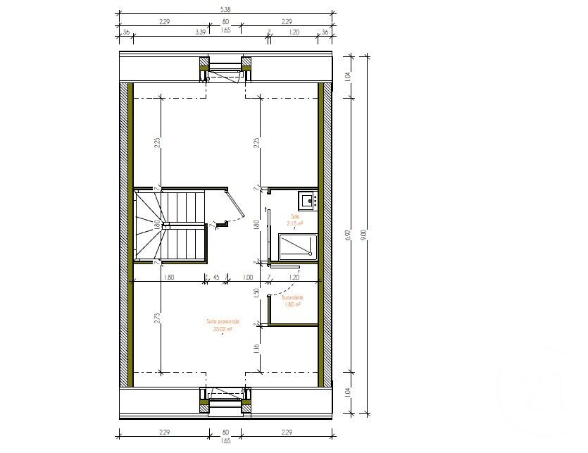
** NOUVEAUTE ** L'AGENCE DES TROIS TERRITOIRES vous propose a seulement 750 mètres du RER A 'Fontenay sous-bois' et du bois de Vincennes, cette maison rénovée de 96 m² comprenant 5 pièces principales. Vous y trouverez une entrée, WC , un séjour lumineux avec une belle hauteur sous plafond, une salle a manger , une cuisine séparée donnant directement sur une vaste terrasse sans vis a vis partagée en un coin repas et solarium, une remise avec rangements, 3 chambres, un bureau ou possibilité quatrième petite chambre enfant, une salle d'eau et une salle de bains avec WC .Vous serez en plein coeur du village a proximité directe de l'école et collège Victor Duruy et des commerces // Matériaux de qualité // Panneaux photovoltaïques // CLASSE DPE D
Honoraires à la charge du vendeur. Classe énergie D, Classe climat B Montant moyen estimé des dépenses annuelles d'énergie pour un usage standard, établi à partir des prix de l'énergie de l'année 2023 : entre 1600.00 et 2200.00 . Les informations sur les risques auxquels ce bien est exposé sont disponibles sur le site Géorisques : georisques.gouv.fr.
Maison ancienne
95.6 m²
7 165 €
5
3
1
1
2 (séparés)
Consommations énergétiques
Logement économe
236
Logement énergivore (kWhEP/m2/an)
Émissions de gaz à effet de serre
Faible émission de GES
8
Forte émission de GES(kgeqCO2/m2/an)
Contact L'AGENCE DES TROIS TERRITOIRES
Contacter gratuitement à l'aide du formulaire ci-dessous.