Chatillon Coligny maison atypique d' une surface d' environ 150 m² proche commodités et services ,au calme ,proche Montargis ,
Idéale pour projet familial et potentiel loisirs avec ses dépendances cette maison saura vous séduire avec son originalité ..
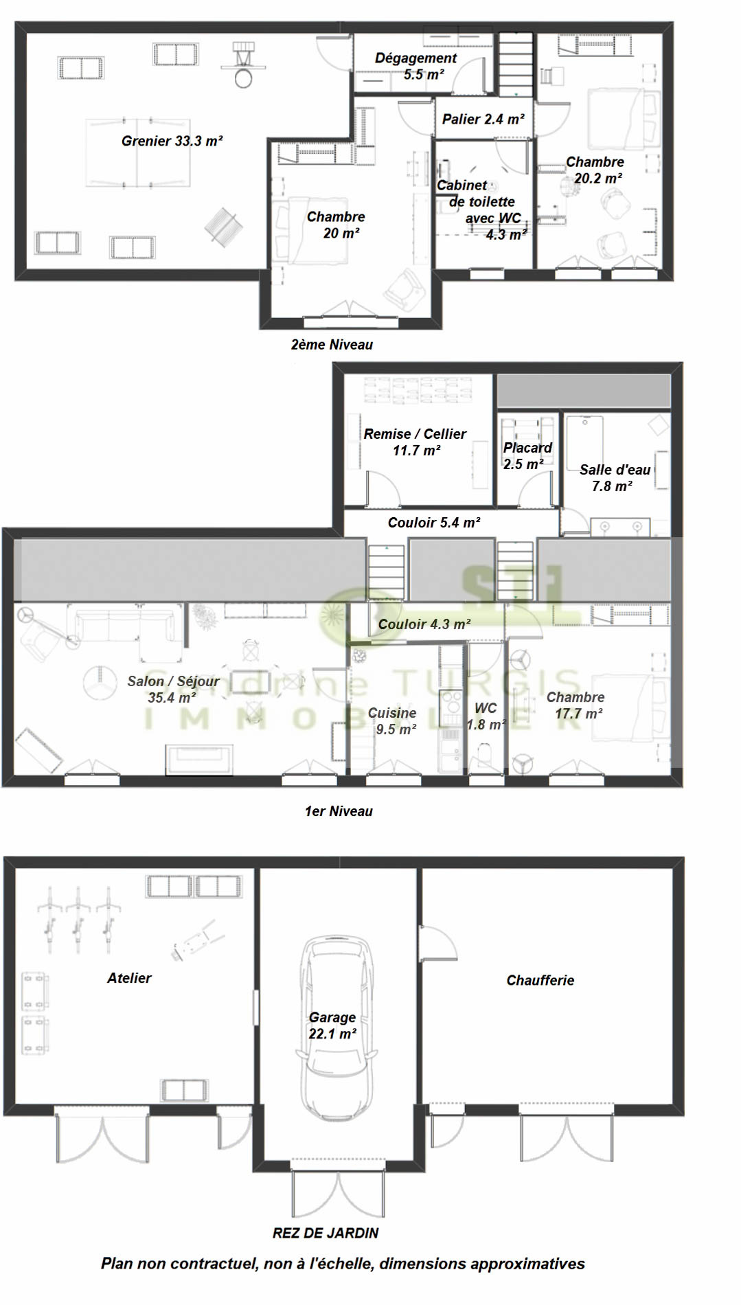
au 1 er étage avec accès coté rue par balcon et jardin vous entrez par la cuisine aménagée ,suivie de son salon séjour lumineux avec deux portes fenêtres et sa cheminée insert bois ,couloir distribuant un cellier aménageable en pièce de détente sauna jacuzzi ,une chambre ,une salle d'eau ,un wc .
au second étage deux chambres ,une salle d' eau avec wc ,dressing ayant accès au grenier idéal pour salle de sport .
au rez de chaussée ,garage ,atelier ,jardin .
le tout sur un terrain d' environ 500 m² avec sa terrasse couverte détente ,et atelier
n' hésitez pas a contacter
François
06 61 19 97 63
Cette annonce référence 314173 vous est présentée par votre agent commercial BSK Immobilier FRANÇOIS MASSELINE (EI) immatriculé au RSAC de ORLEANS (45000) sous le numéro 51747802000020.
Prix du bien : 146 000,00 €
Les honoraires d'agence sont à la charge du vendeur.
A propos des performances énergétiques :
Date de réalisation du diagnostic énergétique : 03/10/2024
Score DPE : 350 kWhEP/m²/an
Score GES : 71 kgepCO2/m²/an
Montant estimé des dépenses annuelles d'énergie pour un usage standard : entre 4870.00 € et 6640.00 € par an. Prix moyens des énergies indexés sur l'année 2024 (abonnements compris).
Les informations sur les risques auxquels ce bien est exposé sont disponibles sur le site Géorisques : www.georisques.gouv.fr
146 m²
1 000 €
500 m²
6
3
1
1
2
1949
Sud
Oui
Oui
Consommations énergétiques
Logement économe
350
Logement énergivore (kWhEP/m2/an)
Émissions de gaz à effet de serre
Faible émission de GES
71
Forte émission de GES(kgeqCO2/m2/an)
Contact FRANÇOIS MASSELINE
Contacter gratuitement à l'aide du formulaire ci-dessous.