Maison neuve à construire DOUGLAS_4CH_105_V1
BELLE MAISON DE 4 CHAMBRES
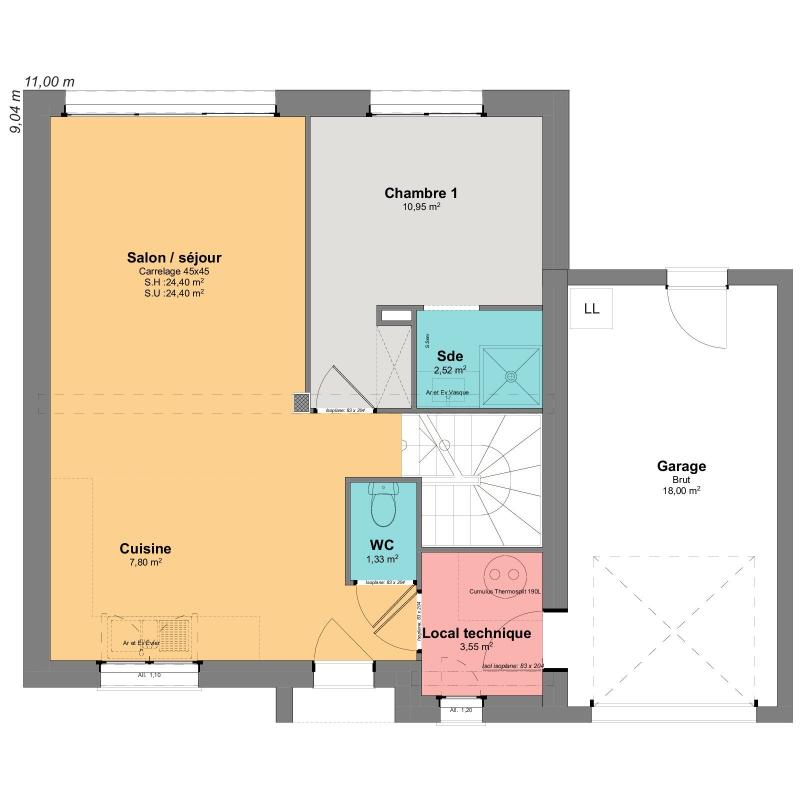
Cette maison de 4 chambres offre une superficie initiale de 105 m2 habitable avant agrandissement. Elle propose une pièce de vie de 36 m2 évolutive selon vos besoins et vos souhaits.
? Lumineuse avec cuisine ouverte donnant sur son jardin.
? Beaux volumes et distribution optimisée des pièces pour votre confort de vie.
? Aménagements et équipements de haut niveau : volets roulants motorisés et connectés, système de chauffage par pompe à chaleur, domotique, carrelage grand format.
ET SI VOUS FAISIEZ CONSTRUIRE AVEC MAISONS ALYSIA ?
Testez notre configurateur en ligne et chiffrez instantanément votre projet personnalisé, téléchargeable.
? Gratuit, rapide et sans engagement.
? + de 250 modèles de maisons personnalisables.
? Calculettes en ligne pour identifier votre budget et évaluer votre future mensualité.
Rendez-vous sur notre site maisons-alysia(.com) pour concrétiser votre rêve.
Contactez-nous au O2 21 67 53 31 pour finaliser votre projet !
Coût du terrain inclus dans cette offre.
Hors peintures et faïence, revêtements de sol des chambres.
Hors assurance dommages-ouvrage, frais de notaire et frais d'adaptation du terrain éventuels.
Cette offre est proposée en collaboration avec notre partenaire foncier selon disponibilités.
Contact : au 02 21 67 53 31.